Le dossier de demande de permis de construire doit réunir un certain nombre de plans pour être complet et valide. Quels sont les plans à créer pour le permis de construire et que doivent-ils contenir ? Découvrez comment un logiciel professionnel expert comme Cedreo peut permettre de réaliser tous les types de plan pour permis de construire très rapidement avec un seul outil.
Quelles sont les informations indispensables à intégrer dans un plan pour permis de construire ?
4 plans doivent impérativement figurer dans votre dossier de permis de construire :
1. Le plan de situation (PCMI1)

Obligatoire pour obtenir une autorisation d’urbanisme, le plan de situation pour permis de construire (PCMI1) sert à préciser la zone d’implantation du projet dans la commune afin d’en déduire les règles d’urbanisme applicables. Il fait donc partie des plans obligatoires à intégrer au dossier de demande de permis de construire selon l’article R*431-7 du Code de l’urbanisme.
Ce que le plan de situation doit contenir
On y retrouve toutes les informations nécessaires sur l’emplacement géographique du terrain : le nom de la commune, l’adresse, les lieux-dits et points d’intérêt autour. Il reprend en général un extrait du plan cadastral recensant les propriétés foncières de la commune ou une carte IGN de façon à être le plus précis possible.
L’échelle du plan de situation doit se situer entre 1/2000 en zone urbaine et 1/25 000 pour les projets en zone rurale.
Où et comment se procurer un plan de situation ?
Plusieurs solutions permettent d’obtenir gratuitement un plan de situation. Pour le réaliser, il faut adresser une demande à la mairie, qui fournira un extrait du cadastre. Accessible à tous sur internet, on peut également le concevoir soi-même en fonction de l’échelle souhaitée. Afin de le rendre bien lisible, il ne reste alors qu’à ajouter des flèches, des hachures ou un contour de couleur sur la parcelle concernée.
Les trois autres plans obligatoires – plan de masse, plan de coupe et plan de façade et toitures – nécessitent un logiciel de création de plan 2D 3D comme Cedreo, l’allié des professionnels pour réaliser des plans complets et chiffrés.
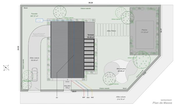
2. Le plan de masse (PCMI2)

Il est également obligatoire pour la déclaration préalable de travaux comme pour la demande de permis de construire selon l’article article R*431-9 du Code de l’urbanisme. Il s’agit cette fois d’une vue aérienne et graphique de la parcelle et doit être le plus détaillé possible.
Ce que le plan de masse doit contenir
Le plan de masse doit impérativement :
- Montrer l’orientation de la construction ainsi que son emprise au sol dans les trois dimensions.
- Préciser le niveau du terrain avant et après construction.
- Indiquer toutes les plantations maintenues, supprimées ou à créer ainsi que les travaux extérieurs.
- Intégrer les constructions existantes qui seront maintenues, les raccordements des bâtiments aux réseaux publics, et les équipements privés en prévision.
- Indiquer l’emplacement de la servitude de passage en cas de voie non ouverte à la circulation publique ainsi que les stationnements.
- Préciser les cotes rattachées au système altimétrique du plan de prévention des risques si le terrain se situe sur une zone inondable.
3. Le plan de coupe (PCMI 3)

Le plan de coupe est un plan « vu de profil » qui fait partie également des pièces obligatoires pour obtenir le permis de construire selon l’article R.431-10 du code de l’urbanisme. En complément du plan de masse et des plans de façades, il offre une vision de l’implantation de la construction par rapport au profil du terrain, dans son état d’origine comme dans son état futur. Avec une échelle au 100ème ou 200ème, il permet d’indiquer les points de niveau et les cotes, les points caractéristiques comme le faîtage, la hauteur des niveaux ainsi que les limites parcellaires.
Ce que le plan de coupe doit contenir
Le plan de coupe pour permis de construire sert par exemple à visualiser les planchers ou l’épaisseur des murs des différents niveaux traversés par la ligne de coupe. Doivent y figurer :
- la pente du terrain, pour illustrer la façon dont les constructions occupent le sol au regard de la pente
- les constructions déjà existantes avec la hauteur des bâtiments – y compris à l’égout et au faîtage – par rapport au terrain naturel.
- le projet de construction avec la hauteur finale
- les limites séparatives et les distances entre ces limites et les différentes façades
- la route, la rue, les fossés, les trottoirs, et les clôtures.
- la pente des toitures.
- tous les éléments souterrains comme le vide sanitaire, le bassin de piscine etc.
4. Le plan de façade et de toitures (PCMI 5)

Le plan de façade et toitures donne une vue de l’aspect extérieur de la future construction avec l’indication de ses hauteurs. Lui aussi s’avère obligatoire selon l’article R*431-10a du Code de l’urbanisme. Son échelle doit se situer entre le 50eme et 100eme. Il doit montrer toutes les façades de la construction : façade avant et arrière, pignons droit et gauche mais aussi tout ce que l’on distingue depuis l’extérieur comme les portes et fenêtres, les éléments architecturaux, les toitures. Il est recommandé de fournir deux plans : celui de la façade actuelle et celui de la future façade.
Ce que le plan de façade et de toitures doit contenir
Le plan de façade et toitures doit montrer chaque façade, avec son orientation les portes et fenêtres, les éléments architecturaux comme les terrasses, balcons, corniches, balustres, gardes corps, etc. , les toitures et cheminées, les panneaux solaires et le type de matériau utilisé sur l’ensemble des façades, les couleurs ainsi que l’aspect de tous les éléments visibles.
Utiliser un seul logiciel professionnel capable de réaliser tous les plans du permis de construire apparaît comme la meilleure solution pour gagner du temps lorsqu’on est constructeur de maison individuelle, maître d’œuvre ou spécialiste de la rénovation. C’est l’objectif de Cedreo, qui offre aux professionnels du bâtiment une solution tout-en-un de la conception à l’exécution.
Comment obtenir les plans pour les permis de construire
Face à toutes ces exigences réglementaires et administratives, le choix d’un logiciel comme Cedreo permet de concevoir tous les plans obligatoires pour la DP ou le permis de construire.
Cedreo, une solution pensée pour les constructeurs de maisons individuelles, les maîtres d’œuvre et les spécialistes de la rénovation.

Afin de réaliser tous ses plans de permis de construire en un temps réduit, il n’est plus nécessaire de multiplier les outils et logiciels selon leurs fonctionnalités. Cedreo réunit en un seul logiciel l’ensemble des fonctionnalités graphiques nécessaires à la création de vos différents plans professionnels nécessaires au permis de construire.
Au-delà de la seule demande de permis de construire, vous pouvez créer tous les types de plans et les vues 3D pour présenter vos projets à vos clients.
Créer son plan de masse et présenter toutes les informations obligatoires

Cedreo permet de réaliser un plan de masse très rapidement pour vos dossiers de permis de construire mais également des vues 3D afin d’aider vos clients à se projeter et visualiser le projet facilement avec ses contraintes liées au terrain.
Après avoir importé votre plan, vous pouvez dessiner, personnaliser et visualiser le terrain fini en quelques clics.
Pensées pour vous faire gagner du temps, les fonctionnalités du logiciel de conception de plan intègrent plusieurs automatisations permettant de présenter les informations indispensables :
- Les limites de propriété avec le type de clôture choisis.
- L’implantation de la maison, la terrasse, piscine ou abris de jardin.
- Les différents accès au terrain et zones de stationnement.
- Les réseaux et canalisations.
- Les symboles des arbres et la végétation.
- La Rose des vents.
- Les lignes de recul.
- Tous types d’annotations (pour préciser les revêtements, constructions existantes, aménagements extérieurs…).
En savoir plus sur la création d’un plan de masse avec Cedreo.
Obtenir son plan de coupe, plan de façade et plan de toiture automatiquement

Pour compléter votre demande de permis de construire, Cedreo vous permet de concevoir les plans de coupe, de façade et de toiture en un clic. Ils sont mis à jour automatiquement au fil des différentes modifications apportées au projet, par exemple en cas de changement de revêtement ou de type de menuiserie.
Vous pouvez ainsi créer une coupe directement sur votre plan et prévisualiser le résultat simultanément, y ajouter des annotations, et y faire figurer arbres et clôtures pour plus de réalisme.
Pour les plans de façade montrant une vue extérieure, les façades sont automatiquement détectées. Il suffit de sélectionner simplement la vue adaptée et de la personnaliser à l’aide de multiples fonctionnalités pour ajouter des cotes, des éléments de la bibliothèque 3D comme les cheminées, les luminaires, les arbres etc. L’ensemble des plans peut être ajouté au document de permis de construire, créé directement dans votre projet. En savoir plus sur la création d’un plan de coupe et de façade avec Cedreo.