La simplicité Cedreo, 100% personnalisable
Le chiffrage Cedreo s’adapte à vos méthodes et à votre organisation pour chiffrer vos projets avec précision.
Gagnez du temps
Fini les ressaisies inutiles. Les données de construction sont transférées automatiquement, prêtes pour un chiffrage précis, en moins de 10 minutes, grâce au configurateur personnalisé.

Travaillez ensemble
Un outil commun pour le commerce et le BE : moins de ressaisies, moins d’erreurs et donc une marge sous contrôle.

Configurez en souplesse
Une configuration 100% personnalisable pour un chiffrage précis, adapté à vos méthodes.

Configurateur de chiffrage
Chiffrez vos projets de construction en 10 minutes chrono.
- Chiffrez votre projet : le chiffrage Cedreo est synchronisé au dessin. Pour chaque lot de votre projet, personnalisez vos choix et options.
- Suivez le guide et évitez les erreurs : avancez pas à pas grâce au suivi automatisé des étapes de chiffrage que vous validez.
- Visualisez le prix en temps réel : modifiez vos choix pour un lot et visualisez instantanément l’impact sur le prix qui se met à jour instantanément.

Interface d’administration
Configurez et maintenez votre base de chiffrage en toute autonomie.
- Personnalisez votre configurateur : définissez les choix et options possibles
- Renseignez vos prix et vos formules de calcul : personnalisez vos formules en jouant avec les blocs et définissez vos prix unitaires, un vrai jeu d’enfants !
- Vérifiez en un coup d’œil : visualisez instantanément vos règles de chiffrage.
- Configurez votre notice : renseignez vos libellés en toute autonomie et personnalisez votre notice
Métré et notice descriptive
Votre métré et votre notice descriptive mis à jour automatiquement.
- Obtenez un métré automatique : votre métré, ce sont vos formules, appliquées à vos prix unitaires, basé sur votre dessin et votre configuration
- Téléchargez vos documents : Métré et notice sont téléchargeables directement depuis votre espace Cedreo

Accompagnement sur mesure
Cedreo, c’est facile à utiliser mais vous pouvez toujours compter sur les coachs si besoin.
- Faîtes-vous coacher: profitez d’une journée de coaching sur-mesure au lancement pour vous mettre le pied à l’étrier
- Ne restez pas bloqués: Un support gratuit et illimité 5j/7 pour répondre à toutes vos questions
- Approfondissez vos connaissances: profitez de tutos et des webinaires réguliers pour rester au top !

Chiffrez vos projets de construction
Grâce à ces fonctionnalités, centralisez le travail et collaborez.
Synchronisation avec le dessin
Gagnez du temps en évitant de ressaisir les données de construction de votre dessin.
Configurateur personnalisable
Chiffrez un projet en définissant des choix et des options pour chaque lot, tout simplement.
Chiffrage pas à pas
En un coup d’œil, suivez votre avancée dans les étapes de chiffrage que vous validez.
Configuration des formules de calcul
Gérez vos formules en jouant avec les blocs, renseignez vos prix unitaires et visualisez rapidement votre travail.
Alertes en cas d’erreurs
Évitez de chiffrer l’impossible ! Votre projet ne pourra pas être chiffré s’il contient des erreurs de tracé.
Métré automatique
Obtenez automatiquement un métré précis de votre projet, basé sur votre configuration.
Notice descriptive
Téléchargez votre notice descriptive avec tout le détail des éléments renseignés.
Export et connexion ERP
Exportez le métré au format tableur et importez les données dans votre ERP pour lancer vos marchés.
Mises à jour automatiques
Profitez d’un logiciel toujours à jour, sans maintenance additionnelle coûteuse.
Combinez le chiffrage avec ces fonctionnalités
Aidez vos équipes à collaborer en combinant ces fonctionnalités.

Plan d’étages
Créez des plans complets et précis pour vos projets de construction ou de rénovation.

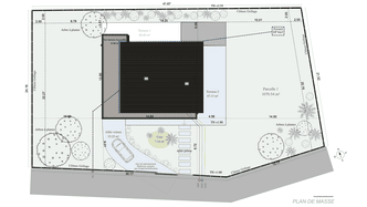
Plan de masse
Modélisez le terrain naturel et le terrain fini en moins de 20 minutes.

Tableaux de surfaces
Obtenez toutes les surfaces de vos projets automatiquement.

Plans de coupes
Créez des plans de coupe d’un simple clic, détaillez avec cotes et annotations.

Catalogue de plans
Créez votre catalogue de plans partagés pour faire collaborer vos équipes.

Documents APS et PC
Concevez et personnalisez vos APS / DP / PC directement dans Cedreo.
“Là au moins, je vous ai. Je vous appelle, c’est fait.”
C’est facile à utiliser. Mais vous pouvez toujours compter sur le support Cedreo.
Je ne suis plus obligé d’attendre la réponse au DCE qui prend souvent 3 semaines pour dire au client : “voilà le chiffrage de votre projet.”


