Le logiciel plan maison intuitif et complet pour créer vos plans rapidement
Avec Cedreo, dessinez et présentez tous vos projets de construction, d’extension et de rénovation en moins de 2h !
Le logiciel de plan de maison dédié aux professionnels
Créez des plans facilement avec un logiciel dédié aux constructeurs de maisons individuelles, maîtres d’œuvre et professionnels de la rénovation. Avec un seul logiciel, tracez et obtenez toutes les pièces graphiques nécessaires à vos présentations APS et dossiers de demande d’autorisation d’urbanisme.
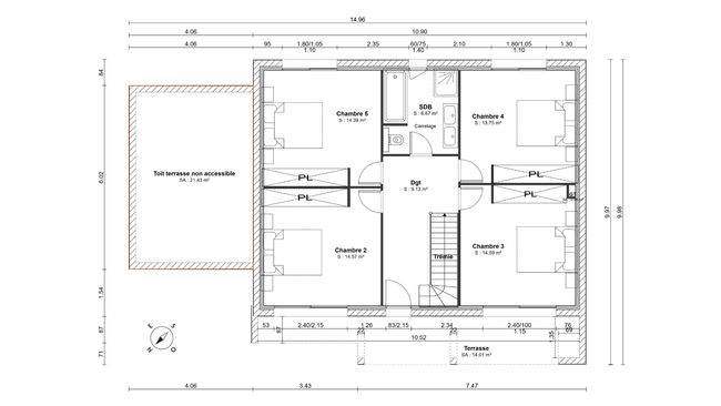
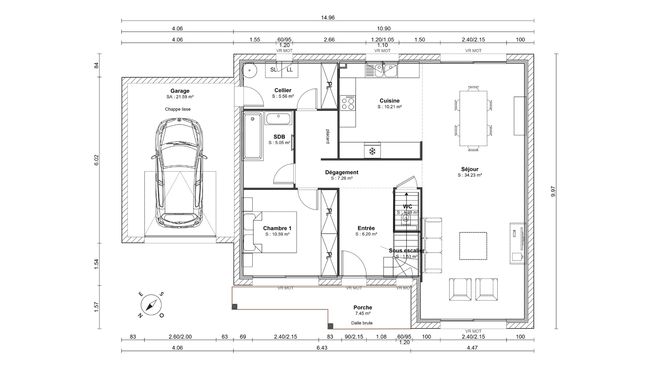
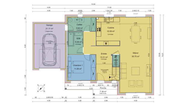
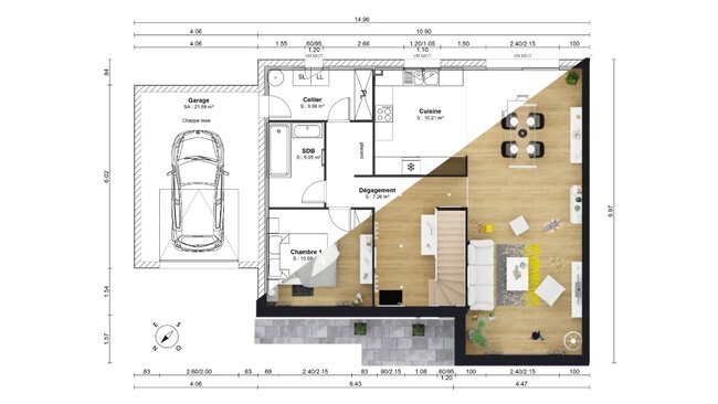
Plans d’étage
Obtenez les plans en 2D et 3D nécessaires pour présenter les projets à vos clients et les aider à se projeter dans leur future maison.
Vous pouvez afficher l’orientation de la maison, les cotes, représenter les éléments principaux par des symboles 2D et aménager l’intérieur et l’extérieur de la maison grâce aux produits en 3D.

Plan de masse
Créez les plans de masse de vos projets, à l’échelle, grâce à la modélisation du terrain naturel et du terrain fini avec la construction. Vous pouvez y faire apparaître les clôtures, lignes de recul, zones d’accès et stationnement, végétation, réseaux et canalisations ainsi que les annotations utiles.

Plan de coupe et plan de façade
Générez les plans de coupe et de façade en un clic. Ces plans sont mis à jour automatiquement dès modification du plan d’étage.
Vous pouvez y ajouter des annotations ainsi qu’y faire figurer les arbres, clôtures pour plus de réalisme.

Créez vos documents de présentation APS ou PC
Tous les plans et documents nécessaires à la vente et au dépôt de permis de vos projets de construction et de rénovation de maisons sont stockés au même endroit pour vous faire gagner du temps.
Pour chaque projet créé avec le logiciel de plan Cedreo, retrouvez toutes les pièces graphiques téléchargeables à tout moment et prêtes à être intégrées dans vos documents de présentation d’Avant Projet Sommaire ou de Permis de Construire :
- Plans de masse
- Plans d’étage 2D & 3D
- Plans de coupe
- Plans de façade
- Plans de toiture
- Rendus 3D photoréalistes
- Tableau des surfaces et de répartition des surfaces vitrées
Si vous modifiez le tracé, les plans intégrés dans vos documents de présentation sont automatiquement mis à jour.
En savoir plus sur les documents de présentation
Faîtes collaborer vos équipes autour d’un même projet
Avec Cedreo, utilisez des projets déjà créés, partagez les nouveaux avec le bureau d’études et les autres commerciaux en 1 clic pour fluidifier la communication entre les membres de l’équipe.
Aidez vos équipes à être plus productives grâce au catalogue de plans ainsi qu’aux projets partagés. Conçu pour s’adapter à toutes les équipes, utilisez ces fonctionnalités pour regrouper vos plans modélisés ou les projets tout juste dessinés par les commerciaux ou le bureau d’études. Ils sont accessibles à tout moment par l’ensemble de l’équipe.
Découvrir comment collaborer sur vos projets
Vos plans chiffrés en temps réel
Automatisez et réduisez le travail de chiffrage de vos plans de maison et améliorez votre processus de vente: plus rapide et plus fiable pour une sécurisation de vos marges.
Une fois le projet tracé dans le logiciel pour plan de maison, estimez le coût global de la construction automatiquement. Modifiez le plan, la mise à jour du prix se fait automatiquement et en temps réel.
En savoir plus sur le chiffrage
Vos outils pour tracer vos plans de maison toujours plus rapidement
Le tracé est intuitif, de nombreuses fonctionnalités permettent de gagner du temps sur la phase de dessin.
- Import de plans à utiliser en calques
- Configuration de valeurs par défaut: épaisseur des murs et des cloisons, épaisseur de dalle, pente de toit, longueur des débords…
- Typage des murs (étanches, isolés de l’intérieur, cloisons…)
- Réduction ou agrandissement de plan avec l’outil de redimensionnement
- Transposition verticale ou horizontale avec l’outil miroir
- Rose des vents et orientation de la maison sur le plan
- Intégration de toitures automatiques et personnalisables
- Large bibliothèque de plus de 1400 ouvrants personnalisables et duplicable dans tout le projet
- Insertion facilitée de poutres et poteaux affichées sur le plan
- Ajout d’étage ou sous-sol en 1 clic en dupliquant les murs extérieurs du rez-de-chaussée
- Calcul de la surface vitrée selon la règle des 1/6ème

Les fonctionnalités clés pour faire des plans facilement
Avec Cedreo, vous bénéficiez de toutes les fonctionnalités gain de temps pour vous permettre de tracer l’ensemble de vos plans et préparer vos présentations d’APS et demandes d’autorisation d’urbanisme toujours plus rapidement.
Import de plan
Gagnez du temps en important un plan existant, un plan de masse ou de cadastre aux formats dwg, dxf, pdf, jpg ou png et en l’utilisant comme calque pour faciliter le tracé du terrain naturel grâce au magnétisme.
Insertion de toits automatique
Ajoutez une toiture automatiquement et personnalisez-la: type de toit, pentes et épaisseur de toit, revêtements, ajoutez des noues automatiquement, lucarnes, des gerbières ainsi que les gouttières, descentes et boîtes à eau.
Création de combles
Créez automatiquement les plafonds de vos combles, modifiez l’épaisseur du doublage des rampants, ajoutez les cloisons de redressement. Définissez la hauteur minimale afin d’obtenir les surfaces habitables dans le calcul des surfaces. Vous pouvez choisir d’afficher les surfaces habitables et utiles sur le plan.
Large bibliothèque de symboles
Ajoutez des symboles à votre plan pour représenter les éléments techniques, réseaux, canalisations, végétation, escaliers ou l’aménagement intérieur.
Vues du projet 2D et 3D simultanées
Créez un plan en 2D et regardez-le prendre vie en 3D simultanément dans une fenêtre séparée.
Cotes automatiques et personnalisées
Des cotes apparaissent automatiquement sur votre plan afin d’en faciliter la lecture. Quelques clics suffisent pour ajouter les cotes supplémentaires là où vous avez besoin de précisions.
Tableau de surfaces automatique
Au fil du tracé, les tableaux détaillés des surfaces habitables, surfaces utiles et surfaces plancher ainsi que la répartition des surfaces vitrées en fonction de leur orientation sont mis à jour automatiquement et téléchargeables à tout moment.
Annotations sur les plans
Annotez vos plans d’étage, vos plans de coupe, plans de façade ou plans de masse pour préciser le projet au maximum.
Vos plans imprimables à l’échelle en 300 dpi
Dessinez vos plans et imprimez-les à l’échelle avec précision. Les plans sont téléchargeables en 300 dpi pour une grande qualité d’impression et aux formats jpg ou dxf.
Exemples de plans réalisés avec le logiciel pour plan de maison Cedreo
Quel que soit le type de projet, tracez et aménagez l’intérieur et l’extérieur pour aider vos clients à se projeter dans leur future maison. Découvrez des plans créés avec Cedreo :

Plan d’étage 2D

Plan d’étage 3D

Plan de façade avec annotations

Plan de coupe

Plan de masse

Plan de maison avec garage simple

Plan de façade

Plan coloré

Vue axonométrique
C’est facile à utiliser.
Mais vous pouvez toujours compter sur le support Cedreo.
Pour une prise en main encore plus rapide.
Parce que vous pouvez toujours aller plus loin et gagner du temps.
Ce sont les utilisateurs qui en parlent le mieux
Cedreo devient le logiciel standard du marché, si on ne l’a pas, on ne pourra bientôt plus suivre.
Nous avons gagné en fluidité dans la relation avec nos clients. Je ne sais pas comment je ferais sans Cedreo !