Plan 2D
Créez des plans 2D à l’échelle, clairs et précis avec l’ensemble des informations nécessaires
Valorisez votre professionnalisme
Mettez en avant votre rigueur et votre sérieux grâce à un plan 2D structuré.
Facilitez la communication
Le plan 2D garantit que toutes les parties du projet sont alignées sur des mesures exactes.
Garantissez la compréhension
Exposez de manière lisible la disposition des pièces, des ouvertures et les circulations.

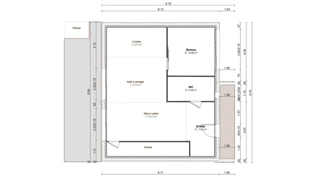
Présentez les informations indispensables
- Pièces : les murs extérieurs et les cloisons intérieures apparaissent ainsi que le nom de la pièce. Ils sont repris automatiquement dans le tableau de surfaces. Des options prédéfinies peuvent s’appliquer en fonction du type de pièce choisi: le garage apparaît en surface annexe dans le tableau de surfaces.
- Cotes et surfaces : plusieurs cotes et surfaces sont automatiquement affichées sur le plan 2D. Il est possible de les afficher ou les masquer et d’en ajouter d’autres selon les besoins.
- Ouvrants : les menuiseries ajoutées sur le projet apparaissent sur le plan 2D, avec leur orientation, la direction d’ouverture, s’il y a des volets battant, roulants motorisés.

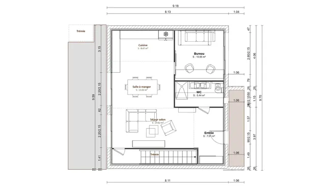
Complétez vos plans 2D
- Symboles : ajout de symboles pour montrer l’emplacement du mobilier, voitures, escaliers, éléments techniques… personnalisables (couleur et dimensions). Le symbole 2D des produits 3D apparaît automatiquement.
- Couleurs : utilisation de couleurs de fond pour identifier rapidement les pièces d’eau, terrasse…
- Rose des vents : affichage ou non par niveau pour indiquer l’orientation de la maison
- Annotations : ajout de texte, lignes et formes sur le plan 2D pour mettre en avant des éléments clés.

Utilisez les plans 2D
- Organisation par dossier : les différents plans de niveau sont disponibles dans le dossier de chaque projet
- Téléchargement : les plans 2D sont exportables, à l’échelle aux formats PDF ou DXF, en 300dpi pour une grande précision
- Présentation : les plans peuvent être insérés dans un document de présentation (avant-projet, permis de construire, déclaration préalable…). Ils se mettent à jour automatiquement si le tracé est modifié.
De la conception à l’exécution
Ces fonctionnalités vous permettent de créer un projet complet.
Le tracé des murs et les ouvrants
Dessinez les murs et cloisons, placez vos ouvrants et obtenez la structure de votre bâti.
En savoir plus sur le tracéTableau de surfaces
Obtenez automatiquement le tableau des surfaces habitables, utiles, plancher.
Plans en 3D
Générez un plan en 3D pour visualiser l’ensemble du projet avec l’aménagement et la décoration.
En savoir plus sur les plans 3DToiture
Créez le toit et les noues automatiquement, insérez les lucarnes, gerbières et choisissez le revêtement.
Coupe et façade
Créez les plans de coupe et de façade automatiquement et ajoutez des annotations et cotes.
En savoir plus sur les plans de coupe et plans de façadeQuestions Fréquentes
Le plan 2D d’un étage avec des combles permet d’afficher la ligne signifiant la limite des 1.80m (valeur par défaut) ainsi que la surface habitable et la surface utile et de montrer les combles perdus sous la pente du toit délimités grâce aux cloisons de redressement.
Oui — Cedreo est un logiciel complet qui permet de créer des plans 2D en ligne pour des projets de construction ou de rénovation de maisons entières. Il est possible d’ajouter des niveaux supérieurs ou inférieurs en dupliquant un étage, pour assurer une parfaite cohésion dans le projet. Cedreo offre également un module de création de toitures unique qui permet d’ajouter un toit en quelques clics et de le modifier tout aussi simplement.
Oui, grâce à l’option chiffrage, vos plans 2D sont prêts à être chiffrés, les données de construction sont automatiquement récupérées. Si vous modifiez le tracé, le plan 2D et le chiffrage sont mis à jour en temps réel.
Le plan d’une maison en 2D est une représentation sans perspective qui permet à vos clients de visualiser clairement un projet avec son aménagement, cotations, portes, fenêtres, éléments techniques, ainsi que les surfaces utiles et surfaces habitables. Cedreo fournit toutes les fonctionnalités dont vous avez besoin pour créer des plans 2D simplement et rapidement quel que soit le type de projet: rénovation ou construction neuve de maison individuelle, appartement, surface commerciale, bâtiment, aménagement intérieur ou extérieur, extension, etc.
C’est facile à utiliser.
Mais vous pouvez toujours compter sur le support Cedreo.
Pour une prise en main encore plus rapide.
Parce que vous pouvez toujours aller plus loin et gagner du temps.
Cedreo devient le logiciel standard du marché, si on ne l’a pas, on ne pourra bientôt plus suivre.