Documents de présentation de projet
Concevez et personnalisez vos documents de présentation et gagnez du temps dans la création de vos APS et PC.
Présentez des documents 100% personnalisés
et toujours à jours
Il n’a jamais été aussi simple de présenter des projets, complets, sans erreur et à vos couleurs.
Gagnez en efficacité
Gérez toutes vos pièces graphiques (Plans de niveaux, plans de coupes et façades, plans de masse, plans de toiture, visuels 3D) et vos documents de présentation APS ou PC au même endroit pour une meilleure organisation et un gain de temps. Et pour gagner encore en efficacité, collaborez avec votre équipe en partageant vos projets.

Créez des documents à votre image
Importez votre logo, vos pièces graphiques, des photos, annotez et personnalisez la mise en page aux couleurs de votre société pour des APS et des PC de qualité.

Evitez les erreurs
A chaque modification des plans ou des revêtements du projet, les pièces graphiques insérées dans vos documents sont mises à jour automatiquement. Plus besoin de les remplacer manuellement. Évitez ainsi les erreurs: vos présentations sont toujours à jour.

Créez vos pièces graphiques
Profitez d’un unique logiciel complet pour tracer toutes les pièces graphiques nécessaires à vos présentations de projets.
Dessinez facilement vos plans de niveaux, de masse, de coupes et de façades. Importez des plans pour faciliter le tracé et collaborez avec votre équipe en partageant vos projets. Générez des rendus 3D photoréalistes en quelques minutes et profitez de l’ensemble des pièces graphiques nécessaires à vos APS et PC. Plans
Rendus 3D

Concevez vos documents de présentation APS ou PC
Toutes vos pièces graphiques sont stockées au même endroit. Ajoutez-les à un document avant de les mettre en page, c’est simple et intuitif.
- 1 projet, plusieurs documents: créez autant de documents de présentation que nécessaire pour un même projet.
- Une bibliothèque de pièces graphiques pour chaque projet: retrouvez tous vos plans et vues 3D dans la bibliothèque du projet, prêts à être intégrés à vos documents à l’échelle souhaitée. Les plans se mettent à jour en temps réel si vous modifiez le tracé ou les revêtements.
- Importez n’importe quel type d’images: complétez votre présentation avec les images nécessaires à vos demandes d’urbanisme.

Personnalisez vos documents
Créez des documents à vos couleurs, à votre image, pour des présentations qualitatives.
- Paramétrez facilement: réglez l’orientation du document, son format, ainsi que les marges d’impression.
- Composez des présentations à votre image: déplacez et modifiez vos images, insérez votre logo, créez un cartouche, choisissez de le répéter sur toutes les pages et ajustez aux couleurs de votre marque.
- Précisez davantage vos documents: ajoutez des zones de texte, des lignes, des flèches, des formes et personnalisez-les à vos couleurs.

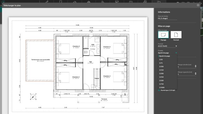
Téléchargez vos documents à l’échelle
Gérez simplement les échelles de vos plans insérés dans vos documents de présentation pdf et ne vous préoccupez plus des problèmes d’échelles à l’impression !
- Définissez l’échelle de vos plans: choisissez l’échelle souhaitée pour chacun des plans que vous ajoutez à votre document de présentation.
- Ajoutez une légende: lorsque vous ajoutez un plan à votre document, précisez-le en ajoutant son échelle.
- Téléchargez: Téléchargez vos documents de présentation de projet au format pdf.

Des fonctionnalités gain de temps
pour des présentations de qualité
Concentrez-vous sur les tâches à forte valeur ajoutée et gagnez du temps dans la création de vos documents de présentation de projet
Textes et annotations
Zones de texte personnalisables qui peuvent être mises en avant avec des flèches, lignes et autres formes.
Magnétisme
Déplacement et positionnement précis et facilités des pièces graphiques dans le document.
Echelles des plans
Choix de l’échelle personnalisable pour chaque plan ajouté au document.
Import d’images
Import d’images ou de photos à ajouter au document (plan de situation ou plan de cadastre par exemple)
Mise en page personnalisée
Personnalisation des couleurs utilisées dans le document, des polices, ajout de votre logo.
Paramètres de document
Choix de l’orientation (paysage ou portrait), du format (A3 ou A4) et des marges d’impression.
Mise à jour automatique
La modification d’un plan ou des revêtements entraîne une mise à jour automatique, temps réel des pièces graphiques insérées dans le document.
Fond de page
Possibilité de création d’éléments graphiques personnalisés à afficher sur toutes les pages du document (cartouche, logo, etc.)
Avancez plus rapidement en combinant ces fonctionnalités
Allez plus loin ! Cedreo offre bien plus que la conception de documents. Découvrez ce que vous pouvez faire d’autre avec Cedreo.

Plan d’étages
Créez des plans complets et précis pour vos projets de construction ou de rénovation.

Plan 3D
Aménagez vos projets en 3D et créez des vues axonométriques.
En savoir plus

Plan de masse
Modélisez le terrain naturel et le terrain fini en moins de 20 minutes.
En savoir plus

Tableaux de surfaces
Obtenez automatiquement les tableaux de surfaces de vos projets et l’orientation des surfaces vitrées.

Plans de coupes
Créez des plans de coupe d’un simple clic, détaillez avec cotes et annotations.
En savoir plus

Plans de façades
Choisissez la façade concernée et cliquez. Un vrai jeu d’enfant !
En savoir plus

Rendus 3D
En quelques minutes, générez des rendus photoréalistes de vos projets.
En savoir plus

Catalogue de plans
Partagez les plans entre les membres de votre équipe pour un travail plus collaboratif.
En savoir plus

Chiffrage
Obtenez un chiffrage complet de votre projet en moins de 10 minutes.
En savoir plus
C’est facile à utiliser.
Mais vous pouvez toujours compter sur le support Cedreo.
Parce que vous pouvez toujours aller plus loin et gagner du temps.
“Une véritable révolution”
Une véritable révolution pour concevoir un projet et le présenter en phase commerciale. Un très bon outil qui s’améliore de plus en plus et nous facilite la vie.
“L’outil indispensable pour vendre des maisons”
Un logiciel simple à maîtriser qui aboutit à des plans de niveaux et visuels 3D réalistes et séduisants. Les prospects sont ravis de la présentation et par voie de conséquence les conseillers commerciaux sont aidés dans leurs démarches et dans leurs ventes.