Dessiner un plan de maison en ligne
Dessinez des plans en quelques minutes avec un logiciel de plan de maison simple et intuitif.

Importez et dessinez des plans en quelques minutes

Dessinez un plan 2D et visualisez simultanément en 3D

Obtenez des rendus 3D de vos plans en 5 minutes
Dessinez des plans complets plus rapidement
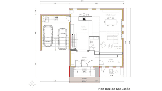
Dessinez un plan d’étage qui réponde aux exigences de vos clients et donne vie à vos projets de construction et de rénovation. Avec Cedreo, vous pouvez créer rapidement et facilement des plans d’étage en 2D et en 3D comprenant :
- les murs extérieurs et cloisons
- le mobilier
- les cotes et superficies des pièces
- les tableaux des surfaces
- l’orientation de la maison
- des annotations pour préciser le plan
Dessiner un plan 2D
Dessiner des plans de maison en 2D est très simple grâce aux fonctionnalités intuitives de Cedreo.
En quelques clics vous pouvez importer un plan puis tracer les murs, ajouter des niveaux, des ouvrants et la toiture.
Vous visualisez le dessin de la maison en 3D simultanément dans une fenêtre, ce qui vous permet de vérifier le rendu de votre projet au fur et à mesure du tracé.
En savoir plus sur le plan 2DObtenez un plan 3D
Une fois le dessin de plan de maison tracé en 2D, vous pouvez aménager les pièces ainsi que le jardin et ajouter des revêtements grâce à un large catalogue de produits personnalisables. Vous pouvez générer une vue du plan en 3D qui permet aux clients de mieux comprendre le projet et de se rendre compte des espaces de la maison une fois meublée.
En savoir plus sur le plan 3DGénérez des rendus 3D intérieurs et extérieurs photoréalistes
Les visuels 3D sont indispensables pour permettre à vos clients de se projeter et de voir les perspectives avec un aménagement. Vous pouvez ajuster les options d’éclairage intérieur et extérieur, de nuit ou de jour, et créer un environnement qui permet d’imaginer le projet.
En savoir plus sur les rendus 3DExemples de plans dessinés avec Cedreo
Cedreo ne permet pas uniquement de dessiner des plans d’étages en ligne mais également d’obtenir des plans de coupe, de façade ainsi que des plans de masse.
Plan 2D
Plan 3D
Plan de masse
Plan de coupe
Plan de façade
Tableau des surfaces
Les fonctionnalités gain de temps pour dessiner des plans de maison plus rapidement
Dessinez facilement un plan d’étage, à l’échelle avec toutes les informations nécessaires. Cedreo permet aux constructeurs de maisons, maîtres d’œuvre, professionnels de la rénovation, de maximiser leur productivité.
Importer une image de plan d’étage
Importez un plan existant en format pdf, jpg, png, dxf ou dwg et utilisez-le comme calque afin de tracer les murs de la maison facilement.
Redimensionner un plan en 1 clic
Cliquez simplement à l’endroit où vous voulez réduire ou agrandir le mur, l’ensemble du plan est redimensionné. Les surfaces sont mises à jour automatiquement.
Dupliquer les ouvrants personnalisés
Choisissez vos portes et fenêtres dans la bibliothèque de plus de 1400 ouvrants et personnalisez leur couleur et dimensions. Ensuite, vous pouvez les dupliquer et les utiliser sur l’ensemble votre projet.
Ajouter des niveaux en seulement 2 clics
Vous pouvez dupliquer les murs du rez-de-chaussée pour créer un niveau supérieur ou un sous-sol aux mêmes dimensions.
Configurer des valeurs par défaut pour tous vos projets
Vous pouvez sélectionner l’épaisseur des murs, cloisons, de dalle, la pente de toit, longueur des débords que vous souhaitez appliquer à tous vos projets de construction ou de rénovation.
Ajouter un toit automatiquement
Ajoutez un toit en 1 clic puis personnalisez-le: pente, revêtement, ajoutez des lucarnes et des noues, descentes.
Obtenir les tableaux des surfaces
Les tableaux des surfaces habitables, utiles et surfaces plancher sont automatiquement mis à jour en fonction du dessin. La répartition des surfaces vitrées en fonction de l’orientation est également automatique.
Aménager votre projet
Choisissez parmi une bibliothèque de milliers d’objets 3D, notamment des meubles et des éléments de décoration personnalisables. L’aménagement permet d’obtenir un plan 3D du projet très utile pour vos clients.
FAQ sur les dessins de plans de maison
Plus d’informations sur le dessin de plan de maison dans cette FAQ :
Combien de temps faut-il pour dessiner un plan 2D en ligne ?
Avec Cedreo, il est possible de dessiner un plan 2D en ligne sans avoir recours à un logiciel CAD complexe ou externaliser le dessin du plan. Ces 2 options impliquent un délai long avant d’obtenir le dessin des plans et ne permet pas d’être réactif auprès de vos clients. En moyenne, Cedreo permet de réduire le temps de dessin de 50 % afin de présenter un premier plan aux clients en moins de 2 heures.
Quel est le meilleur logiciel de plan de maison ?
Le meilleur logiciel de plan de maison doit offrir des fonctionnalités puissantes et une grande simplicité pour permettre de dessiner des plans en ligne, facilement et réduire le temps consacré au dessin de plans. Cedreo est conçu pour les constructeurs de maisons individuelles, les maîtres d’œuvres et les professionnels de la rénovation pour gagner du temps sur la conception et la présentation de projets grâce à une application intuitive et complète.
Pourquoi créer un plan 3D ?
Un plan 3D permet aux clients de visualiser l’ensemble du projet (intérieur et extérieur) et de se rendre compte de l’espace de la maison meublée avec les différents revêtements choisis. Cette vue permet de se projeter plus facilement grâce à une meilleure compréhension du flux de circulation entre les pièces.
À quoi servent les plans dessinés avec Cedreo ?
Le plan 2D permet de présenter le projet avec des informations clés pour vos clients : surfaces des pièces, cotes afin de se rendre compte de l’espace disponible dans leur future maison. Les plans dessinés avec Cedreo vous permettent de déposer le permis de construire ou la demande préalable de travaux sans avoir à utiliser un autre logiciel.