El dibujo arquitectónico es un requisito indispensable para el éxito de cualquier proyecto de construcción o reforma. Afortunadamente, ahora es más fácil que nunca crear distintos tipos de planos arquitectónicos.
Atrás quedaron los días en los que había que dibujar tediosos bocetos a mano o trabajar largas horas con un programa CAD durante días y días.
Con el software actual, incluso con poca experiencia o habilidades en diseño, puedes crear dibujos arquitectónicos profesionales en unas pocas horas.
En este post te contaremos todo lo que necesitas para empezar:
- Tipologías de dibujos arquitectónicos
- Una visión global del proceso de dibujo
- Sugerencia de programas de diseño arquitectónico
¡Pongámonos manos a la obra!
¿Qué es el dibujo arquitectónico?
Un dibujo arquitectónico es un boceto, plano, diagrama o esquema que comunica información detallada sobre un edificio. Los arquitectos y diseñadores crean este tipo de dibujos técnicos durante las fases de planificación de una obra.
Los planos arquitectónicos son importantes por varias razones:
- Ayudan a los propietarios y jefes de obra a comprender el aspecto y el funcionamiento que tendrá una edificación cuando esté terminada.
- Proporcionan la información y las instrucciones necesarias para que el equipo de construcción pueda comenzar las obras y levantar la estructura.
- Y, por último, un dibujo arquitectónico proporciona un registro detallado del funcionamiento interno de un edificio, lo cual es necesario para su futuro mantenimiento.
A lo largo del proyecto, tendrás que crear distintos tipos de planos arquitectónicos.
En la siguiente sección, vamos a aprender más acerca de ellos.
11 tipos de dibujo arquitectónico:
El camino para completar un proyecto de arquitectura comienza con un conjunto detallado de esbozos arquitectónicos. Aquí encontrarás 11 ejemplos comunes de dibujo arquitectónico que puedes necesitar.
1. Planos de sitio

El plano de sitio ofrece una representación aérea de la obra y la propiedad que lo rodea. A veces, incluso sus líneas muestran edificios vecinos o infraestructuras como carreteras.
Los planos de sitio son importantes para mostrar exactamente cómo está situada la estructura de acuerdo a los límites de la propiedad.
Además, los planos del solar pueden ofrecer información detallada y dimensiones de elementos de jardinería, entradas de vehículos, patios y otros elementos exteriores.
Con un moderno software de creación de viviendas como Cedreo, puedes incluso crear planos de sitio en 3D que muestren el diseño paisajístico junto con un plano en 3D del interior de la vivienda.
Este tipo de planos de arquitectura en 3D son un buen complemento para mostrar tus propuestas.

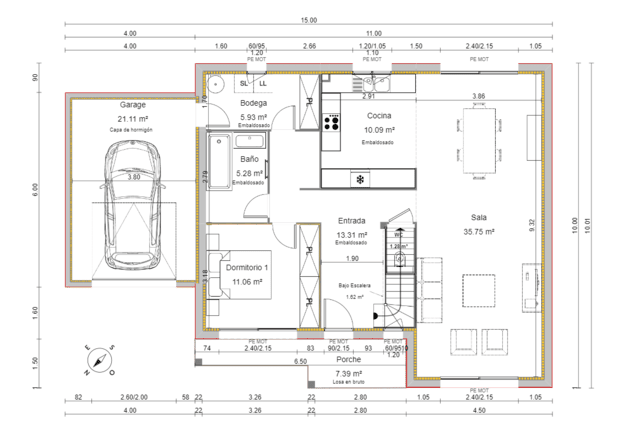
2. Planos de planta

Un plano de planta o proyección horizontal es la representación de la distribución interna de una estructura. En dibujo técnico, existe una gran variedad de planos de planta en función del uso que se les vaya a dar.
Por ejemplo, algunos planos se hacen para mostrar elementos específicos, como sistemas eléctricos o de fontanería.
Los planos más comunes para proyectos de construcción residencial son trazados que muestran líneas y medidas detalladas entre paredes, puertas y ventanas.
La mayoría también muestra los cálculos de superficie de cada habitación. Estos tipos de planos arquitectónicos son esenciales para elaborar presupuestos y construir una casa según las especificaciones del arquitecto.
En el pasado, los planos de proyección horizontal solían limitarse a simples trazados en 2D en blanco y negro. Pero bosquejos así son difíciles de entender para muchos clientes.
Ahora, con programas como Cedreo, se pueden crear planos en 3D con mobiliario, suelos, pintura y decoración. Esto ayuda a los clientes a entender el proyecto y a entusiasmarse con él.

3. Planos de sección transversal
Las secciones transversales son trazados bidimensionales que muestran una combinación de elementos visibles y ocultos de una construcción. Imagina que has cortado un fragmento de la construcción por la mitad a lo largo de un plano vertical y estás viendo el interior. Eso es una sección transversal o un dibujo seccional.
Los dibujos arquitectónicos de secciones transversales son útiles para mostrar cómo están unidas determinadas partes de un inmueble. Pueden mostrar cosas como:
- Cómo deben construirse los muros
- Cómo encajan las ventanas en una sección de pared
- Las transiciones estructurales de una planta a otra.
4. Dibujos de alzados
Un dibujo de alzado de arquitectura se crea a partir de un plano vertical que mira directamente al edificio. Los perfiles de alzado más comunes son los que muestran el exterior de la edificación desde la parte delantera, trasera y lateral.
Los arquitectos también pueden crear alzados similares a las secciones transversales que muestran una vista interior desde un plano vertical. Estos ayudan a mostrar una vista en 2D de armarios, puertas y ventanas.
5. Planos de terminación
Este tipo de dibujo arquitectonico muestra vistas detalladas de los acabados. Con ellos, los arquitectos pueden comunicar información detallada sobre la tipología de revestimientos del suelo, molduras, texturas y colores.
6. Dibujos de paisajes

Los planos de jardines son muy habituales en los proyectos de construcción residencial. Son parecidos al plano de sitio mencionado antes, pero muestran más conceptos y detalles relacionados con el paisaje urbano y la vegetación.
Es importante tener algunos planos de paisaje en 2D para mostrar la disposición general y las medidas. Pero la aplicación de técnicas de dibujo en 3D también son muy útiles para entender el aspecto e incluso color de la vegetación en la vida real.
Con un programa como Cedreo, puedes crear representaciones en 3D con un acabado profesional, que muestren el paisaje al atardecer con la iluminación exterior encendida.

7. Planos de detalle
Los planos de detalles arquitectónicos suelen ser una combinación de secciones transversales y vistas de cerca de una pequeña parte del inmueble. Son muy importantes para mostrar cómo se unen varios elementos en partes críticas de la obra.
En algunos casos, los planos de detalle de ingeniería muestran cómo deben ensamblarse las vigas de hormigón armado. Los de arquitectura muestran elementos de diseño personalizados o uniones complejas, como aleros de tejado y aberturas de ventanas.
8. Planos as built
Los planos as-built (o simplemente “as-builts” para abreviar) son planos revisados que muestran las diferencias entre los planos originales y cómo se construyó el espacio.
9. Planos de excavación
Los planos de excavación proporcionan información detallada sobre zanjas, fosos, pozos, túneles y otras formas de extracción de tierra. En estos planos, los arquitectos también pueden mostrar detalles importantes sobre el proceso de excavación.
10. Planos de ubicación
Los planos de ubicación pueden incluir una combinación de planos de planta, alzados y secciones transversales. A veces llamados “planos de disposición general”, estos planos arquitectónicos muestran la ubicación de los distintos elementos de construcción.
11. Renders 3D
Muestran la estética y el flujo general de un espacio. En el pasado, los arquitectos y diseñadores creaban bocetos a mano que mostraban vistas en 3D del proyecto acabado. Hoy en día, los arquitectos utilizan software de diseño y renderizado en 3D como Cedreo para hacer este trabajo por ellos.
Por ejemplo, con Cedreo puedes crear visualizaciones en 3D que muestran el interior de una casa con acabados, mobiliario y efectos de iluminación precisos.
Este tipo de planos son realmente importantes para impresionar a los clientes y aumentar las ventas.
Ahora que conoces algunas de las tipologías más comunes de planos arquitectónicos, ¿cómo encajan en el proceso general de planificación del proyecto?
Descúbrelo a continuación.
Etapas Principales del Proceso de Dibujo Arquitectónico
Tanto si quieres diseñar un rascacielos como una vivienda residencial, tendrás que utilizar el mismo proceso básico de dibujo. He aquí los principales pasos que siguen los estándares de dibujo arquitectónico.
Planos de sitio
El primer paso es empezar con el plano del sitio. Un plano exacto del emplazamiento con los límites de la propiedad, la topografía y las características existentes te ayuda a determinar el tamaño y la forma del edificio que puedes construir en esa propiedad.
Planos de planta
La fase de diseño de los planos de planta es uno de los pasos más importantes. Todo lo demás -iluminación, fontanería, climatización, etc.- se basa en gran medida en el plano de planta.
A medida que vayas creando el plano de planta y ultimando las dimensiones generales del proyecto, tendrás que crear una combinación de planos en 2D y 3D.
2D
Los planos 2D son la piedra angular de tus dibujos arquitectónicos. Es importante crear planos 2D con marcas de medidas, símbolos para puertas y ventanas, e incluso diagramas de mobiliario.
Sin embargo, si vas a presentar una propuesta de proyecto a un cliente para su aprobación, necesitarás hacer algo más que un dibujo en 2D.
3D
Un plano en 3D hace que tus propuestas de proyecto destaquen. Además, son una de las mejores formas de comunicar eficazmente tus ideas a tus clientes, al permitirte mostrar el proyecto desde diferentes perspectivas.
Puedes subcontratar tu trabajo en 3D, pero es mucho menos engorroso utilizar un programa como Cedreo, que te permite crear simultáneamente planos en 2D y 3D de forma digital.
Una vez que tus clientes aprueben el proyecto final, puedes pasar a los planos más detallados que necesitas para la construcción.
Secciones
Ahora es el momento de crear algunos planos de secciones. Para proyectos de construcción residencial que utilicen métodos de construcción estándar, probablemente no necesitarás muchos planos de sección. Esto se debe a que los operarios ya saben cómo encajan los distintos elementos de construcción. Por tanto, dependerá de las necesidades de la obra.
Alzados
El último paso es crear los alzados exteriores de la construcción. Esta representación muestra detalles importantes de la fachada del edificio: materiales para superficies exteriores, acabados de ventanas y puertas, medidas, etc.
Pero, ¿cuáles son los métodos utilizados para crear estos distintos modelos?
Echa un vistazo a los 3 estilos de dibujo más comunes en la siguiente sección.
Estilos de Dibujo Arquitectónico
¿Quieres saber cómo dibujar planos de arquitectura? Aquí tienes 3 de los estilos de dibujo arquitectónico más comunes.
Bocetos arquitectónicos
Aunque hoy en día los ordenadores hacen gran parte del trabajo pesado, los arquitectos siguen confiando en los bocetos dibujados a mano.
Los bocetos arquitectónicos (aunque se dibujen con un programa de ilustración de ordenador) pueden ser útiles durante las fases iniciales de planificación de un proyecto.
Son una forma fácil y rápida de plasmar algunas ideas en papel para presentarlas a un cliente o a tu equipo.
Sin embargo, con programas de diseño de casas fáciles de usar, estos bocetos pierden importancia rápidamente. Esto se debe a que programas como Cedreo te permiten diseñar una casa entera en el tiempo que te llevaría hacer un solo boceto dibujado a mano, aunque no tengas conocimientos.
Dibujos generados por ordenador
Los dibujos generados por ordenador son planos y renders en 3D creados con la ayuda de software especializado.
En lugar de dibujar a mano cada una de las vistas incluidas las texturas, las sombras y la iluminación, introduces los parámetros y el ordenador hace el resto.
Así se obtienen imágenes de calidad fotográfica que ofrecen a los clientes una vista previa del proyecto acabado. No hay mejor forma de impresionar a los clientes y comunicar claramente tus ideas de diseño.
Algunos programas necesitan muchos ajustes manuales y experiencia en dibujo técnico y modelado 3D. Pero con otros como Cedreo, puedes producir imágenes profesionales prácticamente sin experiencia previa.
Diseño asistido por ordenador (CAD)
Los dibujos CAD se utilizan sobre todo para estructuras grandes y complejas con muchas características personalizadas. Un dibujo CAD en 2D y 3D es perfecto para mostrar secciones transversales y detalles intrincados de prácticamente cualquier elemento.
El inconveniente es que los programas de CAD tienen una curva de aprendizaje muy elevada y los dibujos -aunque detallados- pueden llevar mucho tiempo de creación.
Escalas de Dibujo Arquitectónico Más Comunes
Cuando creas y lees dibujos arquitectónicos, es importante que entiendas las escalas de dibujo.
Básicamente, una escala te ayuda a comprender la relación entre el tamaño de algo en el dibujo y el tamaño de ese mismo objeto en la vida real.
Es importante elegir la escala en función del tamaño de lo que estás dibujando y del tamaño del papel que vas a utilizar para imprimirlo.
He aquí algunas de las proporciones más comunes según las normas de dibujo arquitectónico.
1:500 (1″=40’0″) – Plano de sitio grande
1:250 (1″=20’0″) – Plano del solar
1:200 (1/16″=1’0″) – Plano de emplazamiento pequeño
1:100 (1/8″=1’0″) – Planos de planta, alzados y secciones
1:50 (1/4″=1’0″) – Pequeños planos de planta, alzados y secciones
1:20 (3/4″=1’0″) – Planos de habitaciones y alzados interiores
1:10 (1 1/2″=1’0″) – Carpintería y algunos detalles de construcción
1:5 (3″=1’0″) – Detalles constructivos detallados
Cómo crear un dibujo arquitectónico online
¿Listo para crear un dibujo arquitectónico para un proyecto en línea? Deja a un lado el lápiz y el papel. Estamos en el siglo XXI, así que puedes utilizar un programa para diseñar casas para esta tarea.
Y no te preocupes, no tienes que ser un experto en CAD. Sólo tienes que encontrar el programa de diseño de viviendas adecuado, con una interfaz fácil de usar y las funciones que necesitas.
Los programas modernos como estos han simplificado el proceso de diseño y facilitado la captación de nuevos clientes con presentaciones de proyectos impresionantes.
Este medio supone un gran aumento en la eficiencia en el trabajo para distintos profesionales, entre ellos, el arquitecto proyectista, cuya profesión consiste en llevar a cabo la redacción del proyecto, presupuestos y estimaciones.
Veamos cómo hacer el dibujo arquitectónico de una vivienda residencial con Cedreo, un programa de diseño de viviendas potente pero fácil de usar.
Define los límites de la propiedad
Crea una capa de terreno y utiliza la herramienta de dibujo para trazar las líneas que delimitan la propiedad. Si ya has importado o dibujado el diseño de un inmueble, puedes girar la capa de terreno para asegurarte de que el edificio está colocado correctamente.
Dibuja muros exteriores e interiores
Utiliza el modo de dibujo continuo de Cedreo para dibujar los muros. Si quieres importar un plano existente, simplemente importa el plano, ajusta la escala y luego traza sobre él. A medida que trabajes, verás las medidas actualizadas para garantizar la precisión.
Añade sótano o niveles
Cedreo facilita la duplicación del tamaño de la planta baja. Cuando estés trazando el dibujo, ve a la herramienta de niveles. A continuación, selecciona “añadir sótano” o “añadir nivel”. Como crea un duplicado, es fácil ver dónde añadir cosas como escaleras.
Añade escaleras
Para casas de varios niveles, sólo tienes que crear una abertura y luego arrastrar y soltar el modelo de escalera deseado desde la pestaña de mobiliario.
Incluye aberturas de pared y ventanas
Arrastra y suelta puertas, ventanas y otros tipos de huecos de pared. A continuación, utiliza las herramientas de personalización de Cedreo para definir el tamaño, estilo y moldura de cada hueco.
Cedreo también te ayuda a ahorrar tiempo permitiéndote aplicar las mismas personalizaciones a todas las aberturas del mismo tipo.
Etiqueta habitaciones
Añade etiquetas para la cocina, el salón, los dormitorios, etc.
Añadir medidas
Aunque algunas medidas y cálculos de superficie se añaden automáticamente, también puedes personalizar cuáles aparecen en los dibujos arquitectónicos 2D finales. Sólo tienes que ir a la pestaña plano y seleccionar presupuesto. Allí puedes eliminar o añadir medidas adicionales cuando sea necesario.
Incluye mobiliario y decoración
Uno de los aspectos más destacados de los programas modernos de diseño de viviendas es la posibilidad no sólo de crear un plano en 2D, sino también de poder decorarlo en 3D. Cedreo lo hace realmente fácil.
Todo lo que tienes que hacer es arrastrar y soltar muebles, objetos decorativos y materiales de la biblioteca de diseño. Con miles de opciones para elegir, sabes que podrás amueblar el espacio según los gustos de tu cliente.
Añade el tejado
Ve a la pestaña tejado, donde encontrarás todo lo que necesitas para crear tu tejado.
Con todos los ángulos, los tejados pueden ser complicados. Afortunadamente, Cedreo te lo pone fácil sin dejar de ofrecerte la posibilidad de crear un tejado personalizado para cada vivienda.
Así que ahí tienes cómo hacer un dibujo arquitectónico con un programa como Cedreo. Pero, ¿cómo es Cedreo en comparación con otros programas de dibujo arquitectónico?
En la siguiente sección compararemos los 3 mejores programas.
3 Mejores Programas de Dibujo Arquitectónico
Echemos un vistazo rápido a 3 de los programas más populares utilizados para crear dibujos arquitectónicos. Compara sus características y descubre cuál es el más adecuado para ti.
Cedreo

Cedreo está diseñado para agilizar todo el proceso de diseño de viviendas, desde la planificación inicial hasta la comunicación de ideas a los clientes.
Su intención es la de simplificar y automatizar cada uno de los pasos que tendrías que dar para crear un proyecto arquitectónico desde cero, hasta la representación final. Ayudándote a desarrollar conceptos rápidamente, a mejorar la comunicación, a gestionar cambios de forma ágil, a crear una representación de la vivienda muy cercana a la realidad con el objetivo de cubrir las necesidades de tus clientes de forma sencilla
Es uno de los programas de dibujo arquitectónico más fáciles de usar. De hecho, la mayoría de los usuarios pueden crear un conjunto completo de dibujos, con planos 2D y vistas 3D, en sólo unas horas.
Funciones de dibujo arquitectónico:
- Importa planos existentes
- Dibuja una habitación en cuatro clics
- Planos 2D y planos 3D
- Obtén automáticamente medidas actualizadas mientras dibujas
- Potentes funcionalidades de diseño personalizado
- Amplia biblioteca de mobiliario con más de 7.000 componentes
- Ahorra tiempo reutilizando planos de proyectos anteriores
- Software basado en la nube no atasca tu ordenador
- Renderizados de calidad fotográfica en 3D con 1 clic
- Equipo de soporte de primera clase para ayudarte a tener éxito
- Tutoriales en vídeo
SketchUp
SketchUp es un popular programa de modelado 3D que algunos utilizan para crear dibujos arquitectónicos. En esencia, SketchUp es un programa de modelado 3D, por lo que te ayudará si ya tienes experiencia con él.
Afortunadamente, puedes ampliar sus capacidades comprando complementos para crear, por ejemplo, un dibujo técnico (aunque eso puede disparar el precio, muy rápido).
Funciones de dibujo arquitectónico:
- Capacidad para crear cualquier objeto imaginable
- Gran biblioteca de mobiliario generado por el usuario que puedes añadir a tus diseños
- Crea renderizados HD con la ayuda de plugins adicionales
- Crea dibujos técnicos de detalles arquitectónicos
AutoCAD
AutoCAD ha sido el estándar de oro del software CAD durante mucho tiempo.
Aunque algunos arquitectos utilizan este programa para crear dibujos arquitectónicos, puede resultar tedioso. Y como es un programa tan complejo, tiene además una curva de aprendizaje muy elevada cuando se trata de diseñar casas.
Funciones de dibujo arquitectónico:
- Todas las herramientas que necesitas para diseñar cualquier cosa de forma detallada
- Bibliotecas de símbolos descargables para crear dibujos mecánicos
- Se integra con otros programas para crear renderizados 3D
- Funciones avanzadas de gestión de documentos
Empieza a crear dibujos arquitectónicos profesionales
¿Listo para empezar a crear planos arquitectónicos para tu próximo proyecto? Toma la decisión inteligente y utiliza Cedreo.
Sus potentes funcionalidades, su interfaz fácil de usar y sus impresionantes renderizados en 3D son justo lo que necesitas para tu negocio.
Ningún otro programa te ahorra tanto tiempo y molestias a la vez que te ayuda a conseguir más clientes.
Con una prueba gratuita, no tienes nada que perder. ¡Regístrate en Cedreo hoy mismo!