Header_blog_architect-apps

Guía: Cómo Hacer un Plano de una Casa en 14 Pasos

26/05/2025

Antes de construir una casa, hace falta un plano. Pero ¿cómo hacer el plano de una casa de manera precisa, rápida y visualmente atractiva? El primer paso es crear un anteproyecto, que es mucho más que un simple esquema: se trata de un dibujo a escala muy detallado que muestra las dimensiones y orientación de las habitaciones, los materiales, los revestimientos, el mobiliario, las estructuras exteriores y otros detalles que no se incluyen en un plano de planta básico. 

El problema es que, históricamente, los diseños de planos se han convertido en un cuello de botella en el proceso de construcción y remodelación de viviendas. Los profesionales de la edificación a menudo se quedan atascados y frustrados intentando navegar y aprender un software demasiado complejo.

En este artículo, vamos a recorrer 14 sencillos pasos que los constructores y profesionales de las reformas de viviendas pueden seguir utilizando un programa para hacer planos online, con el objetivo de crear diseños precisos para sus clientes y convertirlos en visualizaciones 3D de calidad fotográfica.

¿Qué es el Plano de una Casa?

Aunque los planos de planta y los anteproyectos se parecen, son documentos fundamentalmente distintos.

Un anteproyecto es el plano de una casa, piso, edificio o estructura que se hace a escala e incluye más características y detalles que un plano básico. Incluye medidas, detalles como ventanas y puertas, e incluso los materiales y accesorios que se utilizarán durante la construcción de la casa. 

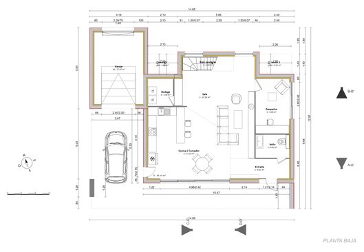
Aquí puedes ver un ejemplo de lo que puede ser el plano de un anteproyecto:

Anteproyecto básico dibujado con Cedreo

Image: Anteproyecto básico dibujado con Cedreo

No solo incluye el tamaño de las habitaciones, sino también escaleras, marcos de puerta, ventanas, electrodomésticos y mobiliario.

14 Pasos para Hacer el Plano de una Casa de Forma Profesional

Los planos de un anteproyecto no tienen por qué dibujarse a mano.

La aplicación de Cedreo permite a cualquier persona; ya sea arquitecto, constructor o profesional de la reforma, diseñar planos profesionales a medida en 2D y 3D en la mitad del tiempo de trabajo que se tarda con otros programas.  

Esta guía te mostrará paso a paso cómo añadir a tu diseño paredes, ventanas, puertas, muebles y más elementos a tu proyecto; así como generar un render 3D del espacio en alta definición sin necesidad de tener conocimientos de CAD (diseño asistido por ordenador).

Paso #1. Investiga la Normativa Municipal

Antes de empezar, veamos por qué es importante saber cómo hacer el plano de una casa de forma profesional y cuáles son los aspectos clave que no debes pasar por alto. La primera y fundamental tarea, antes de hacer el plano de una vivienda, es saber qué se puede (y qué no se puede) construir de acuerdo a la normativa municipal de la construcción o parcela del cliente. 

Cada ciudad y localidad tiene normas distintas sobre el tipo de casa que puede construirse, los metros cuadrados y los requisitos de accesibilidad. Para saber qué normas se aplican, visita la página web de la administración local, donde encontrarás toda la información sobre qué se puede incluir en el proyecto según la zona.

Paso #2. Empieza el Plano de la Casa desde Cero o Importa una Imagen

Una vez resueltos los trámites burocráticos reglamentarios, es hora de empezar a dibujar. 

El primer paso es crear un boceto de la casa del cliente. Empieza con una forma básica que pueda dividirse en distintas habitaciones, como esta:

Como-Hacer-Plano-Casa_Captura_03

Crea un nuevo dibujo o carga un plano 2D del proyecto. Aquí también debes ajustar las medidas del plano, para asegurarte de que son exactas. 

Una vez que tengas un esbozo de las paredes exteriores, puedes cambiarlas si el cliente quiere que la casa tenga una forma irregular o si hay que modificar la fachada. Si el diseño de la casa cuenta con varios pisos, dibújalos individualmente; añadiremos las escaleras para unirlos en el paso 7.

Crea un nuevo dibujo o carga un plano 2D del proyecto. Aquí también debes ajustar las medidas del plano, para asegurarte de que son exactas. 

Una vez que tengas un esbozo de las paredes exteriores, puedes cambiarlas si el cliente quiere que la casa tenga una forma irregular o si hay que modificar la fachada. Si el diseño de la casa cuenta con varios pisos, dibújalos individualmente; añadiremos las escaleras para unirlos en el paso 7.

Este paso es fundamental para quienes se preguntan cómo hacer el plano de una casa a escala, ya que permite ajustar con precisión las dimensiones desde el principio.

Paso #3. Dibuja las Paredes

A continuación, dibuja los tabiques para dividir la superficie en distintas habitaciones. 

Una buena regla general es empezar por la estancia más grande de la casa (como la sala de estar, la cocina, etc.). A continuación, construye a partir de la misma las demás habitaciones, como dormitorios o baños. No hace falta que las etiquetes todavía; el objetivo en este paso es tener una idea aproximada de la distribución general de la casa o piso. 

Esto es a lo que nos referimos:

Como-Hacer-Plano-Casa_Captura_04

Al añadir las paredes de una habitación determinada, Cedreo calculará automáticamente las medidas.

Paso #4. Asigna los Tipos de Habitación

A continuación, etiqueta las habitaciones. 

Asigna el nombre a los baños, el salón, la cocina, los dormitorios, los pasillos, los armarios, el garaje y el sótano. Los rincones pequeños, como la despensa o el baño, deben etiquetarse también en este paso. 


Es importante asignar la palabra correcta para cada tipo de habitación (y no dejarlas como habitación 1, 2, etc.) porque ayuda a los clientes a comprender mejor la distribución de su futuro hogar. De esa manera, podrán visualizar cómo ir de una habitación a otra utilizando pasillos, así como la forma de acceder a las plantas superiores o sótanos utilizando una escalera.

Nuestro diseñador de habitaciones 3d online te ayudará a crear un plano de cada habitación y añadir los elementos de decoración necesarios para que te hagas una idea del resultado final.

Paso #5. Añade Sótano o Niveles Nuevos

Si el edificio tiene varios niveles o un sótano, ahora es el momento de añadirlos. 

Aquí reside una de las mayores ventajas de utilizar un software en vez de dibujar un plano a mano en un papel. Con nuestra aplicación de arquitectura 3D online en español, puedes duplicar la planta baja de un edificio para que la planta superior tenga exactamente las mismas medidas. Así es más fácil saber exactamente dónde añadir componentes como las cajas de escalera, puertas, tuberías y ventanas. 

Asegúrate de etiquetar correctamente cada nuevo nivel (planta baja, sótano, planta superior, etc.) para que, cuando estés reconstruyendo el croquis o añadiendo aberturas, sepas exactamente en qué planta tienes que trabajar. 

Nota: con Cedreo, no tendrás que imaginar el aspecto que tendrán las habitaciones en 3D gracias a su tecnología de representación de planos en tiempo real.

Como-Hacer-Plano-Casa_Captura_05

Al dibujar el plano de tu casa o el de un cliente, Cedreo creará un boceto idéntico en 3D en la esquina derecha de la pantalla para ofrecer una mejor visión del aspecto que tendrá el proyecto en la vida real.

Paso #6. Añade Aperturas en las Paredes

Una vez añadidos los niveles y las paredes interiores, el siguiente paso es dibujar las aberturas de los tabiques, como puertas y ventanas. 

Como en el paso anterior, utiliza el programa para duplicar las aberturas de cada pared y mantén las dimensiones exactas. 

Añade distintos tipos de puerta, desde las batientes hasta las correderas o plegables. 

Por ejemplo, Cedreo dispone de una biblioteca con cientos de modelos que se adaptan a las distintas aberturas de la casa (las puertas plegables de jardín tendrán medidas distintas a las de una puerta de comunicación en el salón). 

Una vez que encuentres la puerta que se adapte al tipo de hueco, solo tienes que arrastrarla y colocarla en su lugar, y el punto de vista 3D se actualizará en tiempo real para reflejar los componentes añadidos: colocarla en su lugar, y el punto de vista 3D se actualizará en tiempo real para reflejar los componentes añadidos:

Si deseas personalizar las dimensiones de un hueco de pared después de añadirlo al plano, puedes ajustar la altura, anchura, el dintel y el umbral en la parte derecha de la pantalla:

Como-Hacer-Plano-Casa_Captura_07

Podrás modificar cada abertura de pared cambiando el color o añadiendo contraventanas, que también aparecerán en el render 3D a un lado de la pantalla.  Una vez más, esto proporciona una mejor visión de cómo será la propiedad una vez esté construida. 

Paso #7. Añadir la Caja de Escalera

Si la propiedad del cliente está dividida en dos o más niveles, tendrás que añadir una caja de escalera para acceder a los mismos. 

Al igual que con las aberturas en las paredes, puedes utilizar Cedreo para añadir la caja de escalera arrastrando y soltando el elemento en el plano. Una vez que sepas dónde quieres colocar una escalera, solo tienes que arrastrarla al lugar:

Como-Hacer-Plano-Casa_Captura_03_v2

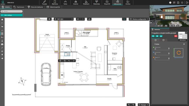
Paso #8: Añade los Símbolos del Plano

Los símbolos se utilizan para representar características clave en un plano, como accesorios de comedor, aislamiento, fontanería, chimeneas y electrodomésticos. Accede a la colección de símbolos en Cedreo utilizando el menú desplegable de la parte izquierda de la herramienta:

Como-Hacer-Plano-Casa_Captura_08

Añadir símbolos en el plano es fácil gracias a la tecnología de arrastrar y soltar de la herramienta. Si necesitas añadir un símbolo de escalera, solo tienes que cogerlo del catálogo haciendo clic con el botón derecho y arrastrarlo al plano:

Como-Hacer-Plano-Casa_Captura_09

Al igual que el resto de cosas que has añadido hasta ahora, puedes cambiar las dimensiones de cada símbolo utilizando el panel de control situado a la derecha de tu diseño.

Paso #9. Añade el Tejado

Ahora es el momento de añadir el tejado. 

A diferencia de dibujar el plano a mano, la mayoría de aplicaciones de creación de planos permiten a los usuarios añadir un tejado automáticamente, ya que conoce las dimensiones exactas de cada nivel del edificio. Elige entre varios tipos de tejado (de varias vertientes, a dos aguas, de una vertiente, plano) y luego, con la herramienta de automatización de tejados, añádelo con un solo clic:

Como-Hacer-Plano-Casa_Captura_10

Una vez añadido el tejado, comprueba la altura y el ángulo de la pendiente y verifica que los parámetros son correctos. A continuación, comienza a añadir otros elementos como buhardillas y bajantes desde el menú situado en la parte superior izquierda de la pantalla de tu navegador.

Por último, no te olvides del canalón. Elige el canalón en el menú de la parte superior izquierda y añádelo a las pendientes inferiores del tejado. Una vez añadido, Cedreo puede añadir automáticamente el resto con un solo clic:

Como-Hacer-Plano-Casa_Captura_11

Paso #10. Añade Elementos Exteriores

A continuación, es hora de visualizar cómo será el exterior de la casa. 

¿Quiere el cliente una entrada pavimentada? ¿Tablado de madera? ¿Una piscina? ¿Un gran jardín? 

Es esencial añadir estos componentes mientras se dibuja el plano para tener una representación exacta del aspecto que tendrá toda la edificación, no solo el interior. 

Ya estés construyendo una casa o haciendo una reforma, este paso te ayudará mucho a vender las casas.

Aquí es donde añadirás muros exteriores para dar privacidad a la propiedad, así como puertas, setos y otros elementos exteriores. 

Una vez que empieces a añadirlos, aprovecha el render 3D de Cedreo para ver cómo quedan los colores de las superficies y las cubiertas y personalízalos según sea necesario:

Como-Hacer-Plano-Casa_Captura_12

Existen diferentes opciones para el exterior, entrada al aparcamiento, setos, cubiertas, piscina, muros perimetrales y mucho más.

Paso #11. Amuebla y Decora

Una vez levantadas las paredes, puesto el techo y colocadas las escaleras, es hora de decorar. 

Añadir mobiliario a las habitaciones es una de las mejores formas no solo de averiguar cómo quedarán decoradas las estancias, sino lo bien que encajarán en el espacio ciertos electrodomésticos como frigoríficos, lavadoras y cocinas. En lugar de dibujarlos individualmente, puedes utilizar la biblioteca de decoración del hogar de Cedreo con más de 7.000 muebles, objetos y revestimientos de superficies en 3D personalizables y luego añadirlos a cada espacio.os a cada espacio.

Como-Hacer-Plano-Casa_Captura_13

Puedes buscar en el catálogo de elementos de hogar mediante palabras clave. En él encontrarás textiles, objetos decorativos e incluso plantas de interior para que el plano sea lo más preciso posible. 

También hay una función anti-colisión que evita que se coloquen accidentalmente unos objetos encima de otros al añadirlos al plano. Si el cliente desea que los objetos se coloquen juntos (como una alfombra debajo de un sofá), basta con desactivar la función y podrás mover los productos libremente a través de otros componentes e incluso paredes.

Paso #12. Personaliza los Materiales de la Vivienda

Una vez añadidos el mobiliario y las instalaciones interiores, puede pasar a los detalles exteriores. 

Aquí puedes personalizar el material utilizado para construir la estructura y los materiales de revestimiento. Por ejemplo, si un cliente quiere que la casa de sus sueños tenga un revestimiento de madera natural, basta con seleccionarlo en el menú de la izquierda de la pantalla y colocarlo en la pared exterior:natural, basta con seleccionarlo en el menú de la izquierda de la pantalla y colocarlo en la pared exterior:

Como-Hacer-Plano-Casa_Captura_14

En esta fase también debes añadir elementos externos, como rampas y revestimientos de ventanas exteriores, para que la casa tenga todos los acabados antes de crear el render definitivo. 

Paso #13. Genera una Visualización HD del Plano

Aquí es donde puede generar una vista HD del plano. 

Con la herramienta visual en HD, puedes generar un render del plano en 3D, con diferentes perspectivas que pueden guardarse como plantillas para otros proyectos.r del plano en 3D, con diferentes perspectivas que pueden guardarse como plantillas para otros proyectos.

Como-Hacer-Plano-Casa_Captura_15

Incluso puedes configurar el entorno para visualizar el edificio con distintos niveles de luz solar exterior. Cuando esté listo, haz clic en Generar y la herramienta creará un render en alta definición en cuestión de minutos. Una vez terminado, el render estará accesible en la galería, donde podrás descargarlo o abrirlo en una nueva pestaña.

Como-Hacer-Plano-Casa_Captura_16

Paso #14. Finaliza la Tabla de Áreas del Plano

El último paso en la creación del plano de la casa consiste en finalizar la tabla de áreas del plano en el dibujo. 

En la parte izquierda de la pantalla, verás una tabla con las habitaciones/zonas de cada planta, así como sus metros cuadrados totales. 

Deberás decidir qué partes de cada nivel se incluirán en los cálculos generales del edificio y si deseas personalizar las dimensiones de alguna zona.

Por último, selecciona las medidas que deseas incluir en el plano final y ¡listo!

Como-Hacer-Plano-Casa_Captura_17

Empieza a Dibujar Planos de Casas Impresionantes Hoy Mismo

Nunca ha sido tan fácil (ni tan asequible) crear planos de casas desde cero. El sencillo programa para hacer planos de Cedreo garantiza que los constructores, especialistas de la reforma y diseñadores de interiores puedan crear planos sin necesidad de tener conocimientos profesionales de CAD. 

Tanto si partes con una hoja en blanco como si dibujas sobre un plano importado, puedes diseñar, amueblar y renderizar el plano completo de la casa en tiempo récord, y generar un diseño de calidad fotográfica que puede utilizarse para visualizar con precisión los sueños de tu cliente y, de paso, cerrar tratos más rápidamente.

Si estás explorando tus opciones, también puedes consultar este programa para hacer planos de casas gratis en español, ideal para quienes buscan comparar herramientas antes de elegir.

¿Quiere saber más sobre el programa para hacer planos de Cedreo?

Haz Crecer tu Negocio con Cedreo.

Ver Planes de Precios
Pruébalo tú mismo aquí