Grundriss

Lernen Sie, wie man einen Grundriss erstellt, die verschiedenen Arten und Beispiele sowie die wichtigsten Überlegungen bei der Erstellung eines Grundrisses

Was ist ein Grundriss?

Ein Grundriss ist eine horizontale Zeichnung bzw. eine visuelle Darstellung der Fläche eines Hauses aus der Vogelperspektive. Er zeigt die Anordnung der Wände und enthält wichtige Elemente des Hauses wie Türen, Fenster, Treppen und die wichtigsten Möbel. Er enthält auch die Namen und Größen der Räume sowie die Abmessungen zwischen den Wänden.

Mehr über Grundriss zeichnen erfahren
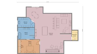
screenshot of cedreo software
Mit Cedreo erstellter 2D Grundriss

Die Bedeutung von Grundrissen

Laut einer Studie von Zillow (führender Immobilienmarktplatz in den USA) möchten 65 % der Käufer eines neuen Hauses den Grundriss sehen. Grundrisse sind ein wirksames Verkaufsinstrument, da sie den Kunden helfen, sich in ihrem neuen Zuhause vorzustellen.

Grundrisse helfen den Kunden, Ihre Vorstellungen vor Baubeginn zu verstehen. Die Erstellung eines detaillierten Grundrisses hilft, Missverständnisse mit den Kunden zu vermeiden, was der Schlüssel zu einem schnellen Geschäftsabschluss ist.

Mehr über Grundrissplaner erfahren

Grundrissarten

Es gibt drei Hauptmethoden, um den Grundriss eines Hauses zu erstellen und die Informationen zu vermitteln, die Hauskäufer wissen wollen: 2D Grundriss, 3D Grundriss und 3D-virtuelle Touren.

2D Grundriss

Der 2D Grundriss ist eine einfache, horizontale Darstellung des Hauses ohne Perspektive, die technische Informationen und Abmessungen der Räume zeigt. Diese Ansicht sollte zusammen mit 3D-Grundrissen präsentiert werden, um den Kunden zu helfen, sich ihr zukünftiges Zuhause vorzustellen.

Mehr über 2D Grundriss erfahren

2D colored floor plans with dimensions

3D Grundriss

Diese Ansicht aus der 3D-Perspektive ist für die Kunden viel leichter zu verstehen, da sie in der Regel vollständig eingerichtet und dekoriert ist. Sie kann auch Außenanlagen wie Terrassen, Gärten und Einfahrten enthalten. Ein 3D-Grundriss ist die ansprechendste Art, ein Hausprojekt zu präsentieren, um es zu verkaufen.

Mehr über 3D Grundriss erfahren

3D floor plan of a Farmhouse

3D virtuelle Touren

Diese Ansicht aus der 3D-Perspektive ist für die Kunden viel leichter zu verstehen, da sie in der Regel vollständig eingerichtet und dekoriert ist. Sie kann auch Außenanlagen wie Terrassen, Gärten und Einfahrten enthalten. Ein 3D-Grundriss ist die ansprechendste Art, ein Hausprojekt zu präsentieren, um es zu verkaufen.

Mehr über 3D Grundriss erfahren

Live 3D plan

6 Wichtige Grundriss-Überlegungen

Eine effektive Grundrissplanung setzt voraus, dass Sie ein umfassendes und detailliertes Verständnis für die Anforderungen der Kunden entwickeln, um ihnen den besten Grundriss für ihr Objekt vorzuschlagen. Es muss die Grundbedürfnisse mit einem logischen Raumfluss und einer ästhetischen architektonischen Balance erfüllen..

Entwurf

Die perfekte Anordnung ist für jeden Kunden einzigartig. Wenn Sie ihn erstellen, müssen Sie von den Anforderungen des Kunden ausgehen und ihn anpassen, um sicherzustellen, dass er funktional und praktisch ist. Wenn Sie die ideale Raumaufteilung mit einem reibungslosen Verkehrsfluss in und zwischen den Räumen schaffen, werden Sie Ihre Kunden wahrscheinlich überzeugen, mit Ihnen zusammenzuarbeiten.

Größe

Die Gesamtgröße des Objekts ist einer der wichtigsten Faktoren für den Kunden, ebenso wie die Raumgröße. Sie sollte sich an den vorhandenen Möbeln des Kunden, der Anzahl der Familienmitglieder und der Art und Weise, wie Ihr Kunde bestimmte Räume nutzen möchte, orientieren.

Lebensstil

Sie müssen den Lebensstil Ihres Kunden verstehen, um sicherzustellen, dass Ihr Grundriss für ihn geeignet ist. Wenn Ihr Kunde z.B. von zu Hause aus arbeitet, braucht er vielleicht ein spezielles Heimbüro mit mehreren Steckdosen.

Unkosten

Die Kosten für den Bau eines neuen Hauses können je nach Schränken, Oberflächen, Fenstergrößen und anderen individuellen Materialien erheblich variieren. Sie können einige Versionen Ihres Grundrisses erstellen, damit Ihre Kunden verstehen, wie sich Materialien und Designelemente auf die Gesamtkosten auswirken können.

Vielseitigkeit

Stellen Sie sicher, dass einige Räume bei Bedarf für einen anderen Zweck genutzt werden können, z.B. ein Gästezimmer, das in ein Kinderzimmer, ein Büro bzw. einen Fitnessraum umgewandelt werden kann, ohne den Verkehrsfluss einzuschränken. Der Grundriss muss den Bedürfnissen Ihrer Kunden auf Jahre hinaus gerecht werden.

Nachhaltigkeit

Viele Hauskäufer suchen heute nach Möglichkeiten, ihren ökologischen Fußabdruck zu verringern. Wenn Ihr Kunde an Nachhaltigkeit interessiert ist, kann sich das auf die Art der Geräte, die Beleuchtung und andere Elemente auswirken, die Sie in ihren Grundriss aufnehmen.

Grundriss Beispiele

Sie können Grundrisse, 3D-Grundrisse von Häusern, Wohnungen und Gewerbeobjekten mit einzigartigen Formen und Größen entwerfen, um sie Ihren Kunden zu präsentieren.

Mit Cedreo erstellter 3D Haus Grundriss

Haus Grundriss

Mit Cedreo erstellter Keller

Kellergeschoss

Einfamilienhaus

Mit Cedreo erstelltes Büro

Büro

Mit Cedreo erstellter Mehrfamilienhaus-Grundriss

Mehrfamilienhaus

Mit Cedreo erstellter Doppelhaus-Grundriss

Doppelhaus

Gemeinsame Grundrissabbildungen (und Symbole)

Für die Anpassung von Grundrissen stehen mehrere Optionen zur Verfügung, mit denen sich verschiedene Räume, Möbel, Fenster/Türen und vieles mehr schnell identifizieren lassen. Diese Symbole sind besonders nützlich für Bauunternehmer, die an Hausbau- oder Renovierungsprojekten arbeiten.

Wall on 2D plan

Wände

Wände und Trennwände erscheinen als durchgezogene Linien und können unterschieden werden, um einen Innenraum, eine Außenisolierung oder eine wasserdichte Trennwand anzuzeigen.

Door on 2D plan

Türen

Symbole für Türen zeigen die Aufschlagrichtung – in den Raum hinein oder aus dem Raum heraus – sowie die Anschlagseite an, die durch die gerade Linie dargestellt wird. Schiebetüren werden durch 2 Rechtecke dargestellt.

Window on 2D plan

Fenster

Die Symbole für Fenster geben die Aufschlagrichtung an, wie die Türen bei Fenstertüren, die Dreh- oder Bildfenster werden mit einem Rechteck dargestellt.

Stairs symbol in Cedreo

Treppen

Treppen werden durch ein Rechteck mit parallelen Linien dargestellt, um die Stufen zu zeigen. Der Pfeil zeigt die Richtung der Treppe an, von unten nach oben.

Furniture symbol

Einrichtung

Es stehen mehrere Möbelsymbole zur Verfügung, um den Zweck eines jeden Raumes in einem Grundriss zu definieren.

Dimensions in Cedreo

Bemaßung

Sie können Bemaßungssymbole ausblenden, um den Grundriss zu optimieren und bei Bedarf neue hinzuzufügen.

Wie wird ein Grundriss erstellt?

Mit Cedreo ist das Entwerfen von Grundrissen schnell und einfach, egal ob Sie Entwürfe für Häuser, Wohnungen oder gewerbliche Projekte erstellen. Folgen Sie einfach den untenstehenden Schritten.

1. Importieren Sie einen Grundriss

Wenn Sie bereits einen Grundriss haben, können Sie eine Version im JPEG-,PNG- bzw. PDF-Format importieren und die Wände darauf nachzeichnen. Sobald Sie einen Grundriss importiert haben, können Sie ihn leicht neu erstellen, einschließlich der Maße und der Platzierung von Türen und Fenstern. Anschließend können Sie ihn drehen, um seine Ausrichtung auf dem Bildschirm zu ändern. Spiegeln Sie ihn, indem Sie ihn mit nur einem Klick an einer vertikalen oder horizontalen Achse spiegeln.

Benutzeroberfläche Screenshot - Grundriss importieren

2. Zeichnen Sie den Grundriss

Wenn Sie in Cedreo Grundrisse von Grund auf zeichnen, beginnen Sie mit den tragenden Wänden und fügen dann die inneren Trennwände hinzu, nachdem Sie die Dicke der Decke und die Höhe unter der Decke ausgewählt haben. Dies ist einfach mit dem Gitter, um Sie zu führen, während der kontinuierliche Zeichnung-Modus ermöglicht es Ihnen, die Ecken des Hauses Design zu erstellen, indem Sie mit der linken Maustaste, wo immer Sie brauchen.

Benutzeroberfläche Screenshot - Grundriss zeichnen

3. Erstellen Sie das Grundstück

Wenn Sie den Grundriss des Hauses gezeichnet haben, können Sie den Außenbereich gestalten. Sie können ein Grundstück auf dieselbe Weise importieren wie einen Grundriss. Sie können die Grenzen mit einer Hecke oder einer niedrigen Mauer zeichnen, die Einfahrten, Rasenflächen, Terrassen und den Pool hinzufügen. Dann können Sie die Verkleidungen Ihrer Wahl anbringen, um Ihren Vorschlag individuell zu gestalten.

Benutzeroberfläche Screenshot - Grundstück erstellen

4. Geschosse hinzufügen

Sobald Sie das Erdgeschoss erstellt haben, können Sie mit nur zwei Klicks ein Keller- oder Obergeschoss hinzufügen. Die Außenwände des Erdgeschosses werden automatisch dupliziert. Bei mehrstöckigen Grundrissen können Sie die oberen und unteren Ebenen ein- oder ausblenden. So können Sie sehen, wo die Trennwände des einzelnen Geschosses liegen. Dank des 3D-Fensters können Sie betrachten, wie Ihr Entwurf in 3D aussieht, während Sie in 2D zeichnen.

Benutzeroberfläche Screenshot - Geschosse hinzufügen

5. Bemaßung eingeben

Eine Wand verschieben oder den Gesamtgrundriss auf vertikaler bzw. horizontaler Basis vergrößern oder verkleinern – ein Klick genügt und die anderen Wände werden automatisch verlängert oder verkleinert, um die gleichen Winkel beizubehalten.

Die Bemaßung zwischen den Wänden wird je nach Ihren Profileinstellungen in metrischen oder imperialen Maßen angezeigt. Die Flächenberechnung wird automatisch auf dem Grundriss und in der Flächentabelle mit der Berechnung der Räume und des Gesamtentwurfs aktualisiert.

Mehr über bemaßten Grundriss erfahren
Benutzeroberfläche Screenshot - Bemaßung eingeben

6. Einrichten und dekorieren

Jetzt ist es an der Zeit, die Verkleidungen, die Materialien, Möbel und Dekoration aus einer 3D-Bibliothek mit mehr als 7.000 anpassbaren Produkten auszuwählen – klicken Sie einfach auf die Produktkategorien und dann auf den Raum, in dem Sie einen Artikel verwenden möchten. Dank des Assistententools können Sie ganz einfach entscheiden, ob Sie es für das ganze Haus oder nur für einen Raum verwenden möchten. Mit den Möbeln und der Dekoration verfahren Sie genauso: Nach der Auswahl klicken Sie auf die Stelle, an der Sie das Möbelstück ablegen und drehen möchten, und passen Sie die Farben an den Stil des Kunden an.

Benutzeroberfläche Screenshot - Einrichten

7. 2D- oder 3D-Grundrisse erstellen

Mit nur zwei Klicks können Sie einen maßstabsgetreuen Grundriss in Schwarz-Weiß oder Farbe im PDF-Format herunterladen, einschließlich der Fläche jedes Zimmers, der wichtigsten Möbelsymbole und der Wandtypen.

Erzeugen Sie 3D-Renderings, indem Sie den Kamerawinkel von Cedreo so einstellen, dass Sie die gewünschte Draufsicht auf den Grundriss erhalten und sowieso ein 3D-Grundriss in HD (1280×720) oder Full HD (1920×1080) erzeugen. Die Bearbeitung dauert nur 5 Minuten und ist dann zum Download bereit.

Benutzeroberfläche Screenshot - Visualisierungen erstellen

Häufig gestellte Fragen zum Grundriss

Was ist das beste Grundriss-Programm?

Mit dem besten Grundriss-Programm können Sie in weniger als 2 Stunden einen gesamten Haus Grundriss zeichnen, den Innen- & Außenbereich einrichten und 3D-Renderings erzeugen. Achten Sie auf intuitive und zeitsparende Funktionen, mit denen Sie schnell einen Grundriss zeichnen können.

Wer verwendet Grundrisse?

Bauherren, Innenarchitekten, Architekten, Renovierungsunternehmen und Handelsvertreter benötigen alle Grundrisspläne, um potenziellen Kunden ein Hausprojekt zu präsentieren. Auch Immobilienmakler verwenden sogenannte Immogrundrisse. Egal, ob es sich um einen Neubau oder eine Renovierung handelt, es ist ein grundlegendes Mittel, um das Gesamtdesign und die Raumanordnung zu präsentieren und den Kunden zu helfen, Ihre Vision zu verstehen.

Was ist ein freier Grundriss?

Im Gegensatz zu einem offenen Grundriss hat der freie Grundriss tragende, fest eingezogene Wände in den einzelnen Etagen. Dieser traditionelle Grundriss ermöglicht es Ihnen, jedem Raum einen einzigen Zweck zuzuweisen, im Gegensatz zu offenen Küchen und Wohnzimmern.

Sind 3D-Grundrisse besser als 2D-Grundrisse?

3D-Grundrisse haben einen anderen Zweck als 2D-Grundrisse. Grundrisse sind ideal, um mehr technische Details wie die Bemaßung der Wände, die Wohnfläche, die Lage bzw. die Türen darzustellen. Sie können heruntergeladen und maßstabsgetreu ausgedruckt werden. Als Verkaufsinstrument sind sie jedoch ungeeignet, da sie für Kunden schwer zu lesen und zu verstehen sein können. Vollständig eingerichtete 3D-Grundrisse vermitteln ein echtes Gefühl für den Grundriss des Hauses und den Verkehrsfluss.

Cedreo jetzt ausprobieren

Preise ansehen