주택 건축업자, 리모델링업자, 인테리어 디자이너이든 최고의 청사진 프로그램을 사용하면 작업이 훨씬 쉬워집니다.
올바른 청사진 프로그램은 시간, 번거로움, 비용을 절약하는 것 이상의 역할을 합니다. 더 많은 고객을 확보하는 데 도움이 될 것입니다. 그렇기 때문에 현명하게 선택하는 것이 중요합니다.
많은 청사진 소프트웨어 옵션이 있습니다. 여러분의 비즈니스에 가장 적합한 것을 어떻게 찾을 수 있을까요?
이 10분 동안 올바른 선택을 하기 위해 알아야 할 모든 것을 배우게 됩니다.
그럼 시작해 볼까요?
최고의 주거 청사진 프로그램을 선택하는 방법
다양한 기능을 갖춘 다양한 주거 청사진 소프트웨어 옵션이 있습니다. 물론 모든 것이 여러분의 비즈니스에 적합한 선택은 아닙니다. 따라서 선택할 때 고려해야 할 5가지 사항은 다음과 같습니다.
1. 유용성
사용하기가 얼마나 쉬운가요? 이를 효과적으로 사용하려면 광범위한 디자인 배경과 수년간의 교육이 필요할까요? 많은 전문 CAD 또는 BIM 설계 프로그램이 이에 해당합니다. 다른 청사진 작성기에는 일부 고급 사용자 맞춤 기능이 부족할 수 있지만 사용하기가 더 쉽습니다.
2. 경제성
여러분은 청사진 소프트웨어에 얼마만큼 투자할 의향이 있나요? 대형 건설 회사는 일반적으로 설계 팀이 작업할 수 있는 값비싼 프로그램에 대한 예산을 책정합니다. 소규모 계약 기업과 주택 리모델링업체는 필요한 설계 도구를 갖추고 있으면서도 예산 친화적인 소프트웨어의 이점을 누리는 경우가 많습니다.
3. 기능성
청사진 프로그램이 필요한 이유가 무엇일까요? 그냥 2D 청사진을 만드실 계획인가요? 대부분의 주택 전문가는 추가 기능의 이점을 누릴 수 있습니다. 그렇기 때문에 Cedreo와 같은 최신 청사진 소프트웨어를 찾는 것이 가장 좋습니다.
Cedreo와 같은 소프트웨어는 사용하기 쉬운 중요한 청사진 도구를 제공하므로 평면도의 크기를 조정하고, 여러 레벨을 추가하고, 크기에 맞게 그림을 그리고 인쇄하고, 표면적을 빠르게 계산할 수 있습니다. 또한 Cedreo는 3D 평면도 및 사실적인 렌더링 제작에 필요한 모든 것을 제공합니다.
4. 확장성
여러분의 비즈니스가 성장함에 따라 청사진 프로그램이 이를 따라갈 수 있을까요? 계정에 팀 구성원을 쉽게 추가할 수 있는 옵션을 찾아보세요. 그리고 특히 주의할 점은 가격입니다. 가격이 바로 프로그램의 기능을 확장하는데 중요한 요소입니다.
5. 언어
계획 수립을 위한 최고의 프로그래밍 언어가 있어도 주택 프로젝트를 보다 효율적으로 수행할 수 있습니다.
6. 고객 지원
또한 자습서 및 온라인 비디오도 사용할 수 있는지 여부와 같이 사용 가능한 지원 옵션을 고려해 보세요. 더 좋은 점은 일부 프로그램에는 여러분의 프로젝트를 도와줄 고객 성공 팀이 있다는 것입니다.
10가지 최고의 청사진 솔루션 (주요 기능 포함)
여러분 비즈니스에 가장 적합한 솔루션을 찾기 위해 최고의 주거용 청사진 프로그램 10가지를 살펴보겠습니다. 점점 더 많은 주택 전문가들이 전환하고 있는 프로그램부터 시작해 보겠습니다.
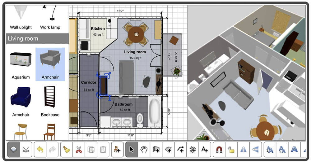
1. Cedreo (세드레오)

Cedreo는 더 많은 건축업자, 리모델링업자 및 설계자가 사용하고 있는 선도적인 3D 청사진 소프트웨어입니다. 사용하기 쉽고 2D 및 3D 홈 디자인 도구가 이렇게 훌륭하게 조합된 다른 프로그램을 찾기는 어렵습니다!
실제로 Cedreo를 사용하면 2D 청사진과 3D 렌더링을 통해 처음부터 끝까지 주택 전체를 디자인할 수 있습니다. 그러기 위해서는 딱 두 시간만 충분합니다!
너무 부담스럽지 않으면서 필요한 강력한 도구를 갖춘 직관적인 인터페이스로 시작됩니다. 기존 평면도를 가져오거나 처음부터 청사진을 시작할 수 있습니다. 어느 쪽이든 몇 번의 클릭만으로 간단한 레이아웃을 만들 수 있습니다.
Cedreo는 또한 프로그램의 모든 유료 버전에 포함된 광범위한 라이브러리를 보유하고 있습니다. 라이브러리는 가구, 장식 및 재료에 대한 7,000개 이상의 옵션 등 옵션을 가지고 있습니다.
계획이 완료되면 몇 번의 클릭만으로 사실적인 렌더링으로 고품질의 프로젝트를 만들 수 있습니다. 잠재 고객을 돕는 데 적합합니다.
팀원이 늘어남에 따라 Cedreo도 성장합니다. 모든 사람이 클라우드 기반 소프트웨어를 통해 설계에 대해 협업할 수 있도록 기업 요금 플랜으로 팀 구성원을 추가할 수 있습니다.
질문이 있으면 도움을 쉽게 찾을 수 있습니다. 비디오 튜토리얼 및 일대일 교육 외에도 전담 성공 관리자에게 문의하여 맞춤형 도움을 받을 수 있습니다. 여러분의 프로젝트가 지연되지 않도록 답변을 받으실 수 있도록 도와드리겠습니다.
주요 특징들:
- 기존 청사진 모두 가져오기
- 디자인을 복사하고 재사용하여 시간 절약
- 2D 및 3D 청사진을 동시에 보기
- 규모에 맞는 맞춤 인쇄
- 만들 수 있는 프로젝트 수에는 제한이 없습니다.
- 드롭 천장이나 다중 경사 지붕과 같은 요소에 대한 고급 설계 기능
- 가구부터 창문까지 거의 모든 디자인 요소를 맞춤 설정하세요.
- Windows 및 Mac과 호환 가능
- 클라우드 기반 처리로 인해 컴퓨터가 느려지지 않습니다.
- 원클릭 꾸미기로 많은 시간을 절약할 수 있습니다
- 5분 안에 3D 렌더링 생성
- 스페인어, 프랑스어, 영어, 독일어 등 다양한 언어 지원
가격: 모든 예산에 맞는 Cedreo 요금제가 있습니다. 여기서 요금제를 자세히 알아보세요.
지금 가입하고 무료 계정으로 오늘부터 디자인을 시작해 보세요.
2. SketchUp Pro (스케치업 프로)

스케치업 프로는 다양한 용도로 사용되는 인기 있는 3D 모델링 플랫폼입니다. 특별히 청사진 소프트웨어로 설계되지는 않았지만 2D 및 3D 계획을 모두 생성할 수 있습니다.
스케치업 프로는 대화형 3D 연습을 통해 프로젝트를 표현하는 데 적합합니다. 또한 몇 가지 추가 확장 기능을 사용하면 프로젝트에 인상적인 3D 렌더링을 만들 수도 있습니다.
스케치업 프로를 사용하면 가파른 학습 곡선 등을 포함한 고품질의 주택 디자인과 청사진을 제작할 수 있습니다. 이전에 3D CAD 경험이 많지 않은 분들도 쉽게 사용할 수 있습니다.
그리고 3D 렌더링과 같은 것을 만들려면 추가 추가 기능을 구입해야 한다는 사실을 금방 알게 될 것입니다 (때로는 스케치업 프로 자체만큼 비쌀 수 있습니다!).
주요 특징들:
- 고급 3D 모델링 도구
- 전문적인 2D 청사진 만들기
- 수천 개의 개체가 포함된 3D 카탈로그
- 추가 기능 구매로 3D 렌더링 생성 가능
- 보고 도구
- 대화형 프레젠테이션 도구
가격:
- $199/년 – 개인 프로젝트
- 프로 $299/년 – 전문가 사용자
- 스튜디오 $1,199/년 – 고급 워크플로우용
3. 오토캐드

오토캐드는 오랫동안 전문 CAD 프로그램의 표준이 되어 왔습니다. 건축가, 엔지니어 및 기타 전문가는 이를 사용하여 거의 모든 것에 대한 상세한 2D 및 3D 설계를 제작할 수 있습니다.
특별히 제작된 청사진 소프트웨어는 아니지만 다양한 분야에 대한 기술 도면을 생성하기 위한 다양한 도구 세트가 함께 제공됩니다. 대규모 건설 회사와 협력하여 상세한 배관, 기계 또는 구조 청사진을 작성해야 하는 경우 AutoCAD가 최고의 선택이 될 것입니다.
그러나 대부분의 주택 건축업자, 리모델링업자, 인테리어 디자이너에게 오토캐드는 선택이 아닐 수 있습니다. 도구 목록이 끝없이 많지만 학습 곡선이 매우 가파르고 비용이 많이 들 수 있습니다.
주요 특징들:
- 견고한 지원 옵션
- 수많은 튜토리얼
- 아키텍처 도구 세트로 워크플로 간소화
- 모바일 앱
- 특정 그리기 작업을 자동화하는 기능
- 다양한 거래를 위한 기술 도면 작성
가격
- $220/월 또는 $1,775/년
- 학생들을 위한 더 저렴한 옵션도 있습니다
4. Floorplanner (플로어플래너)

CAD 전문가가 아니고 사용하기 쉬운 청사진 프로그램을 원한다면, 플로어플래너가 좋은 선택이 될 것입니다. 직관적인 인터페이스는 처음부터 바로 사용이 간편하여 간단한 실내 공간 레이아웃을 신속하게 만들고 꾸밀 수 있습니다.플로어플래너는 또한 여러분의 창의력을 만족시켜줄 다양한 가구와 장식 옵션을 갖춘 대규모 디자인 라이브러리를 보유하고 있습니다.
그러나 주택 건축업자나 리모델링업자에게는 그 기능이 너무 제한적일 수 있습니다. 내부 레이아웃에 중점을 두기 때문에 지붕과 조경 디자인을 만드는 데 사용할 수 있는 도구는 제한되어 있습니다. 게다가 렌더링은 가장 현실적이지 않습니다. 특히 질감과 자연 조명 효과의 경우 더욱 그렇습니다.
주요 특징들:
- 사용하기 쉬운 레이아웃 도구
- 대형 3D 라이브러리
- 3D 평면도 및 3D 렌더링 생성
- 클라우드 기반 소프트웨어
- 모바일 앱
개인 요금제
- 기본 무료
- 플러스 $5/월
- 프로 $29/월
기업 요금제
- 팀 $59/월
- 비즈니스 $179/월
- 기업 $599/월
5. Planner 5D (플래너 5D)

플래너 5D는 일반 디자이너와 아마추어 디자이너를 위한 예산 친화적인 청사진 소프트웨어 옵션입니다. 플래너 5D는 가격대비 놀라운 기능을 제공합니다.
사용자 인터페이스는 탐색하기 쉽고 프로그램을 사용하면 2D 계획과 3D 시각화를 모두 생성할 수 있습니다. 증강 현실과 가상 현실 보기 옵션도 있습니다.
그러나 이는 DIY을 위한 좋은 옵션이 될 수 있지만 청사진을 확장하여 쉽게 내보내고 인쇄하거나 고급 사용자 정의 도구와 같이 전문 건축업자에게 필요한 일부 기능이 부족할 수 있습니다.
주요 특징들:
- HD 시각화
- 5,000개 이상의 항목이 포함된 사용자 생성 디자인 카탈로그
- 2D 및 3D 디자인 모드
- 자동화된 가구 배치
요금제
- 기본 무료
- 유료 버전 월 $6.99, 연간 $15.99 또는 프리미엄(영구) 계정의 경우 $24.99
6. SmartDraw (스마트드로)

스마트드로는 단순한 2D 청사진 이상의 용도로 사용할 수 있는 웹 기반 그리기 앱입니다. 다양한 차트, 다이어그램, 계획을 만들 수 있도록 만들어졌습니다. 또한 Google Drive 및 Office와 같은 타사 도구와도 통합됩니다.
청사진 프로그램인 스마트드로에는 미리 만들어진 템플릿, 건축 기호 라이브러리, 규모에 맞게 그리기 및 인쇄하는 기능과 같은 2D 계획을 작성하기 위한 많은 유용한 기능이 있습니다.
그러나 3D 도구는 없습니다. 그리고 3D 청사진과 렌더링이 전문 프로젝트 프리젠테이션에서 점점 더 중요한 부분이 되고 있기 때문에 SmartDraw가 부족함 대부분의 주택 전문가에게 적합합니다.
주요 특징들:
- HVAC, 배관, 전기 등의 건축 기호
- 직관적인 도구
- 모바일 앱
- 통합된 클라우드 스토리지 도구로 계획을 쉽게 공유할 수 있습니다.
요금제
- 개인 월 $9.95
- 팀은 사용자당 월 $5.95부터 시작합니다(최소 사용자 5명).
- 기업 연간 $2,995부터 시작
7. EdrawMax (이드로맥스)

이드로맥스는 스마트드로우와 유사한 다이어그램 작성 도구입니다. 이를 통해 다양한 차트, 그래프는 물론 기본 2D 청사진까지 만들 수 있습니다.
그러나 이는 엄밀히 말하면 청사진 프로그램이 아니기 때문에 수행할 수 있는 작업이 제한됩니다. 3D 평면도, 사실적인 시각화 또는 기본 2D 청사진 이상의 것을 만드는 것이 어려울 수 있습니다.
주요 특징들:
- 마인드맵, 순서도 및 기타 다이어그램 만들기
- Mac, Windows, Linux에서 작동
- 사용하기 쉬운 드래그 앤 드롭 도구
- 사전 제작된 템플릿
요금제
- 개인 $99/년
- 팀 2개 장치에 대해 연간 $119
8. 스위트 홈 3D (스위트 홈 3D)

예산이 매우 부족하고 몇 가지 간단한 프로젝트만 수행해야 하는 경우 스위트 홈 3D가 청사진 소프트웨어로 적합할 수 있습니다. 미리 만들어진 디자인 기능이 포함된 작은 라이브러리와 함께 제공되는 무료 오픈 소스 소프트웨어입니다.
추가 디자인 요소에 액세스하려면 비용을 지불하면 몇 가지 추가 기능을 사용할 수 있습니다. 그러나 3D 이미지와 전체 플랫폼 자체는 다소 구식이므로 대부분의 전문가는 다른 곳을 찾아볼 것입니다.
주요 특징들:
- 일부 3D 디자인 도구
- 2D 및 3D 보기 간 전환
- 기존 청사진 가져오기
- 계획 주석
요금제
- 옵션이 매우 제한된 무료 버전
- 추가 제품 라이브러리에 액세스할 수 있는 다양한 유료 옵션
9. RoomSketcher (룸스케쳐)

사용하기 쉬운 인터페이스와 2D 및 3D 청사진 도구의 조합 기능으로 룸스케쳐는 인기가 많습니다. 측정 마크업이 포함된 2D 계획부터 3D 사진까지 하나의 프로그램으로 모든 것을 만들어 볼 수 있습니다.
그러나 일부 건축업자는 보다 사실적인 질감과 조명을 갖춘 고품질 렌더링을 선호합니다. 그리고 다른 사람들은 유료 요금제를 사용하더라도 할 수 있는 작업이 제한되어 있고 추가 기능에 액세스하려면 더 많은 비용을 지출해야 하는 경우가 많다는 사실에 불만을 느낍니다.
주요 특징들:
- 2D 및 3D 계획 생성
- PC, Mac 및 모바일 장치에서 작동
- 규모에 맞게 청사진 다운로드
- 3D 이미지 및 연습
가격
- VIP $49/년
- PRO $99/년
10. Roomle (룸레)

룸레는 주로 가구 레이아웃을 계획하고 가구 제품을 전시하는 방법으로 만들어졌습니다. 이를 위해 룸레에는 대화형 평면도를 생성할 수 있는 2D/3D 조합 공간 플래너가 있습니다.
일부 실내 장식가에게는 잘 작동할 수 있지만 대부분의 주택 전문가에게는 규모에 맞게 2D 청사진 인쇄, 조경 디자인 도구, 외부 렌더링 등의 추가 기능이 필요합니다.
주요 특징들:
- 사용하기 쉬운 인터패이스
- 여러 장치에서 작동 가능
- 대화형 3D 계획
- 클라우드 기반 소프트웨어
요금제
- 룸레는 무료로 사용할 수 있습니다
여러분에게 적합한 청사진 프로그램은 무엇인가요?
건축업자, 리모델링업자, 디자이너 모두 최고의 청사진 소프트웨어를 사용하면 시간, 비용, 번거로움을 절약할 수 있습니다.
이것이 바로 점점 더 많은 주택 전문가들이 Cedreo로 전환하고 있는 이유입니다. 강력한 기능, 사용하기 쉬운 도구, 놀랍고 사실적인 렌더링의 독특한 조합은 최고입니다.
오늘 Cedreo를 사용하고 사업을 확장하고 있는 주택 전문가와 함께 하세요. 지금 무료로 사용해 보세요!