Se sei un costruttore di case, un designer di interni o un professionista della ristrutturazione, poter fare affidamento sul miglior programma per planimetrie è essenziale per comunicare la tua visione ad acquirenti e impresa di costruzione, qualunque sia il tuo progetto: una nuova casa o una ristrutturazione.
Questo è quello che le persone di solito cercano su Google:
- Qual è il software di planimetria più semplice?
- Qual è il miglior programma per planimetrie?
- Qual è il miglior software per progettare una casa?
Abbiamo cercato di rispondere a queste domande nel modo più semplice possibile e abbiamo identificato le caratteristiche più utili che dovresti trovare nel tuo programma per planimetrie, per assicurarti di essere in grado di progettare facilmente una casa completa senza perderci ore.
Ecco 10 caratteristiche fondamentali che abbiamo identificato per aiutarti a fare la scelta migliore:
- Superfici e misure personalizzabili
- Importazione di planimetrie esistenti
- Progettazione facile del tetto
- Planimetrie stampabili in scala
- Classificazione delle stanze, annotazioni e simboli tecnici
- Possibilità di personalizzare le altezze dei soffitti
- Libreria di aperture a parete personalizzabili
- Possibilità di generare planimetrie 3D da planimetrie 2D
- Visualizzazione 2D e 3D simultanea
- Catalogo progetti con opzioni di collaborazione

Perché Hai Bisogno di un Software Per Planimetrie?
Il miglior programma per planimetrie ti permette di ottenere una visualizzazione chiara e precisa di un progetto di una casa nuova o già esistente. Sarai in grado di creare un progetto di interior design con rappresentazione visiva di ogni stanza nel dettaglio, ma sarai anche in grado di generare vedute esterne complete di terrazzo, tetto, giardino, cortile, piscina e layout.
Se scegli il programma per planimetrie più adatto alle tue esigenze aziendali, avrai uno degli strumenti di vendita più potenti a tua disposizione.
Innanzitutto, ti consentirà di accelerare il processo decisionale dell’acquirente. Mostrando al tuo cliente il risultato finale di un progetto, lo aiuti a comprendere rapidamente la tua visione.
Ti consentirà inoltre di essere in sintonia con l’impresa, poiché sarai in grado di comunicare loro in modo chiaro e preciso la tua visione grazie a una documentazione dettagliata.
Tuttavia non tutti i software per planimetrie offrono la stessa esperienza e le stesse opzioni. Prima di fare la tua scelta, è importante valutare attentamente quali caratteristiche sono essenziali e quali ti aiuteranno a creare la planimetria della tua nuova casa o del progetto di ristrutturazione, risparmiare tempo e avere in mano alla fine le migliori rappresentazioni visive del tuo progetto.
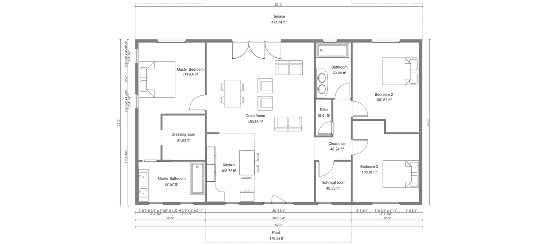
1. Superfici e Misure Personalizzabili
Quando avvii un progetto di design per la casa, in particolare un progetto di ristrutturazione, potresti prima voler disegnare la pianta della casa esistente. Potresti semplicemente voler valutare la superficie a disposizione, ottenere le dimensioni e, probabilmente, iniziare a giocare con i diversi layout possibili.
Tieni presente che non tutti i software di planimetria ti permetteranno di farlo così facilmente. Dovrai controllare se la piantina disegnata include le misure di muri e pareti divisorie, così come il calcolo delle superfici.
Dovrai verificare se puoi personalizzare i muri e aggiungere le loro dimensioni – come altezza o spessore, se necessario – o aggiungere annotazioni sulla planimetria stessa. A volte ciò può facilitare la comunicazione con l’impresa.
Alcuni dei migliori software di planimetria ti offrono anche la possibilità di scaricare una tabella delle superfici che include le superfici dell’intero progetto suddivise per stanze.

2. Importazione di Una Planimetria Esistente
Per un progetto di ristrutturazione, che si tratti di una ristrutturazione della cucina o di un progetto di ristrutturazione del bagno, o anche della ristrutturazione di una casa completa, potresti già avere a disposizione planimetrie esistenti che puoi utilizzare come modello. Con il miglior programma per planimetrie è possibile importare una planimetria esistente e utilizzarla come livello su cui disegnare. Ciò ti farà risparmiare molto tempo e garantirà che tutte le dimensioni siano accurate. Una volta che avrai importato e disegnato tramite software, puoi mettere al lavoro la tua creatività e immaginare un progetto completamente nuovo rimuovendo pareti, progettando un nuovo layout per la cucina e proponendo in generale una nuova atmosfera domestica ai tuoi clienti.
3. Progettazione Facile Del Tetto
La maggior parte dei software CAD offre funzionalità molto complete per il tetto e moduli di layout della struttura. Tutti i tetti, per quanto complessi possano essere, possono essere realizzati con questo tipo di software. Tuttavia, la progettazione di tetti con questo tipo di software è spesso complicata e talvolta richiede conoscenze tecniche. Se non sei un architetto o un progettista, quasi certamente sarà difficile per te ottenere ciò che desideri, nella migliore delle ipotesti potresti impiegare ore di lavoro per ottenere un risultato dubbio. Dei vari software di planimetria più facili da usare, pochi sono in grado di offrire uno strumento efficace per la progettazione di un tetto. Questa caratteristica è tuttavia essenziale se si desidera visualizzare l’esterno di una casa in 3D o anche se si prevede di progettare mansarde con soffitti inclinati.
Cedreo, ad esempio, offre un modulo di progettazione del tetto estremamente facile da usare. Il magnetismo e l’inserimento automatico del tetto sono opzioni che aiutano davvero. Una volta disegnata la planimetria, è sufficiente un clic per posizionare un tetto base. È quindi possibile modificarne la forma, rimuovere una sezione, modificare la pendenza del tetto, gli sbalzi, aggiungere grondaie e pluviali, ecc.

4. Stampa di Planimetrie in Scala
Essere in grado di stampare la tua planimetria 2D in scala – in modo chiaro su una singola pagina – è essenziale per comunicare con gli acquirenti e anche con l’impresa. Le planimetrie stampate in scala fanno parte del materiale di vendita presentato dai professionisti dell’edilizia abitativa nelle proposte commerciali.
Le funzionalità di stampa in scala sono disponibili solo nei programmi per planimetrie destinati ai professionisti. Solitamente questa funzione viene impostata automaticamente con parametri predefiniti che possono essere eventualmente personalizzati.

5. Classificazione Delle Stanze, Annotazioni e Simboli Tecnici
Queste caratteristiche sono essenziali per la tua planimetria.
Per identificare facilmente le diverse funzioni degli spazi abitativi e capire immediatamente come sono collegati tra loro (zona giorno, zona notte, area bambini, garage, terrazza, ecc.) alcuni software di planimetria consentono di assegnare colori alle diverse stanze.
Il miglior programma per planimetrie per professionisti offre anche la possibilità di aggiungere annotazioni a qualsiasi elemento del progetto. Utile, ad esempio, se desideri evidenziare dettagli particolari per l’impresa. I nomi delle stanze, ovviamente, possono essere modificati se necessario.
Se intendi utilizzare un programma specifico per generare le tue planimetrie, devi sapere se puoi aggiungere simboli alle planimetrie. Ciò è importante per i seguenti motivi:
- Permette all’impresa di visualizzare l’elemento tecnico che dovrà tenere in considerazione (prese di corrente, attacchi d’acqua, aria condizionata, ecc.)
- Gli acquirenti di casa possono identificare i dettagli tecnici che gli saranno utili nella loro vita quotidiana ma anche visualizzare le diverse zone abitative con simboli non tecnici come quelli relativi all’arredamento.
Tra gli elementi che devono essere evidenziati su una planimetria 2D, vale la pena di menzionare i diversi tipi di parete. Quando si disegna una planimetria si potrebbe voler attirare l’attenzione sul fatto che il muro sia impermeabile, coibentato o un semplice muro divisorio.

6. Possibilità di Personalizzare le Altezze dei Soffitti
Se hai bisogno di progettare una casa con soffitti di altezze diverse, assicurati di valutare le diverse opzioni che il tuo software può fornirti.
L’uso di soffitti di altezze diverse può essere una scelta per delimitare gli spazi in un open space. Ma può anche essere un vincolo che ti trovi a dover affrontare, in particolare nei progetti di ristrutturazione. In ogni caso, è fondamentale poter gestire le differenze di altezza dei soffitti sulle planimetrie e visualizzarle nelle viste 3D.
Anche l’altezza del soffitto può essere personalizzata in alcuni dei migliori programmi per planimetrie. Ciò è utile per creare controsoffitti che servono a evidenziare un’area particolare, a nascondere dettagli tecnici o a creare uno spettacolare effetto di design. Se il programma per planimetrie ti consente di gestire le altezze dei soffitti, dovrebbe risulltare molto facile disegnare con precisione i tuoi progetti di interior design. Assicurati di prendere in considerazione l’International Building Code che viene utilizzato per gli edifici commerciali e residenziali e che descrive l’altezza minima del soffitto da rispettare nelle stanze abitabili.

7. Libreria di Aperture a Parete Personalizzabili
Le aperture a parete personalizzabili offrono una rappresentazione visiva chiara ed esatta del progetto domestico. Ecco perché dovresti cercare di essere il più preciso possibile quando integri le aperture nella tua planimetria 2D, sia in termini di dimensioni che di rappresentazione visiva, quest’ultima importante per creare rendering 3D.
Alcuni software per planimetrie dispongono di strumenti che consentono di disegnare le proprie finestre o porte. È utile se prevedi di integrare aperture su misura nel tuo progetto, ma può portarti via molto tempo. Se il tuo obiettivo è ottenere rapidamente una rappresentazione chiara del progetto della tua casa, che si tratti di una planimetria 2D o di una vista 3D, potresti voler cercare una soluzione più efficiente.
La maggior parte delle aziende che producono software per planimetrie offrono una versione di prova gratuita a cui consigliamo vivamente di iscriversi. E’ il modo migliore per valutare se la libreria di aperture a muro è abbastanza ampia da soddisfare le tue esigenze. Le dimensioni di aperture disponibili nelle librerie dei prodotti spesso corrispondono alle dimensioni standard. Tuttavia, dovresti essere in grado di modificarle leggermente e di personalizzare i colori e i materiali secondo necessità, per essere il più vicino possibile a ciò che desideri installare nella nuova casa o nel progetto di ristrutturazione. Sui software professionali di solito sono disponibili gli stessi colori utilizzati dai produttori.

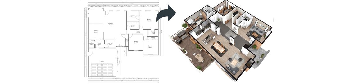
8. Possibilità di Generare Planimetrie 3D da Planimetrie 2D
Le planimetrie 3D sono un potente strumento di vendita. Sono ideali per aiutare i clienti a visualizzare un layout planimetrico e valutare lo spazio disponibile per muoversi una volta che la casa è arredata.
Ma creare una planimetria 3D a volte può essere più difficile di quanto pensi. Alcuni software facilitano il processo di creazione di planimetrie 3D fornendo un’opzione automatica. A volte l’opzione si rende disponibile durante la creazione dell’immagine HD. Il software posiziona automaticamente la telecamera nel posto giusto, appena sopra la tua rappresentazione 3D. L’unica cosa che devi fare è fare clic sul pulsante di rendering per ottenere una vista dall’alto di alta qualità in 3D della tua planimetria Puoi scegliere di mostrare o meno il tetto e/o i piani superiori della casa, a seconda di cosa vuoi far vedere ai tuoi clienti: Vista Dall’Alto in Pianta 3D Con Dettagli Degli Esterni, Vista Dall’Alto in Pianta 3D Senza Sfondo o Planimetria 3D Isometrica.

9. Visualizzazione 2D e 3D Simultanea
Può essere frustrante passare continuamente dal 2D al 3D quando si crea una planimetria, al fine di verificare se le aperture sono ben posizionate, se il tetto ha l’aspetto che hai in mente, se gli oggetti 3D sono al posto giusto, ecc.
Nel miglior programma per planimetrie le viste 2D e 3D sono disponibili sulla stessa schermata. Ciò significa che quando disegni in 2D, vedrai la tua casa creata in 3D all’istante. Una funzione che ti farà risparmiare molto tempo e che renderà il processo di creazione di una planimetria 3D molto più intuitivo.

10. Catalogo Progetti Con Opzioni di Collaborazione
Se sei un costruttore di case potresti voler riutilizzare le planimetrie che hai precedentemente utilizzato per altri clienti. La disponibilità del catalogo delle planimetrie all’interno del programma permettee di creare un nuovo progetto basato su una planimetria-modello. Non devi disegnare tutto da zero, ti basta modificare i layout in base alle esigenze dei tuoi clienti e sarai subito in grado di produrre una nuova proposta in pochissimo tempo.
Un catalogo dei progetti può rivelarsi particolarmente efficiente soprattutto per le persone che lavorano in team. Le opzioni di collaborazione possono essere molto utili. Un membro del tuo team potrà creare planimetrie da zero. E potrà dare ad altri membri del team il diritto di creare nuovi progetti basati su queste planimetrie-modello e di modificarli leggermente secondo i desideri dei loro clienti.
Per Proseguire
Queste 10 caratteristiche non sono le uniche cose che devi prendere in considerazione per stabilire qual è il miglior programma per planimetrie per te, ma sono gli elementi essenziali che ti aiuteranno a disegnare in modo semplice ed efficiente le planimetrie della tua casa.
Per assicurarti di scegliere il software più adatto alla tua attività, alcuni altri elementi devono essere presi in considerazione, come il tipo di progetti che intendi realizzare, il numero medio di progetti completati al mese, ecc.
Devi anche pensare al tipo di software di cui hai effettivamente bisogno. In alcune situazioni, il software CAD può essere più appropriato del software professionale per planimetrie, che può essere visto come un programma di promozione delle vendite. Tuttavia, sia i programmi CAD che i programmi di sales enablement possono essere utilizzati come strumenti complementari, gestiti da persone diverse della tua squadra.
**Il modo migliore per fare la scelta giusta è testare diversi software.**La maggior parte delle aziende offre una versione di prova gratuita per permetterti di capire se si adatta alle tue esigenze. Cedreo offre una versione gratuita.